4 MS Sleipner
4.1 Innledning
I dette kapitlet vil kommisjonen beskrive MS Sleipners konstruksjon og dens utrustning, besetningen om bord og prosessen knyttet til sertifisering av fartøyet. Siktemålet er å gi en redegjørelse for den faktiske tilstand skipet befant seg i forut for ulykken, besetningens kompetanse samt den kontroll norske myndigheter og klasseselskapet hadde foretatt før fartøyet ble satt i drift.
Kapitlet må sees i sammenheng med kapittel 3, hvor kommisjonen har gitt en redegjørelse for rettslige rammer for konstruksjon av hurtigbåter, kravene til opplæring av hurtigbåtbesetning samt kravene til besiktigelse og kontroll.
4.1.1 Bakgrunn – kontraherings- og byggeprosessen
I 1995–96 medførte den sterke trafikkveksten i Flaggruten at HSD så behovet for nybygg, større enn de fartøy man inntil da hadde operert med. Det ble tatt kontakt med en del ledende verft for å se om de kunne tilby fartøy som passet HSDs ønsker, men HSD fant ikke løsninger man var fornøyd med. HSD valgte da i stedet å utvikle et eget konsept. I april 1997 inngikk rederiet en samarbeidsavtale med konsulentfirmaet Paradis Nautica AS med sikte på å utvikle et nytt hurtigbåtkonsept. Forut for dette hadde det vært mer uformelle drøftelser mellom partene. Prosjektet var basert på et ønske om økt passasjerkomfort, kortere terminaltid og reduserte driftskostnader i forhold til de eksisterende fartøyene.
I september 1997 sendte HSD ut en anbudsinnbydelse til aktuelle verft. På det tidspunkt var hovedkonseptet ferdig utviklet, og vedlagt innbydelsen fulgte en omfattende teknisk spesifikasjon. Etter en anbudsprosess hvor flere norske verft var inne, endte HSD opp med å inngå kontrakt med Austal Ships Pty. Ltd i Henderson, sør for Perth i Western Australia. Austal hadde ikke tidligere bygget for norske rederier, men HSD hadde vært i kontakt med en representant fra verftet siden 1996 i forbindelse med den sonderingen HSD gjorde for å se hva markedet kunne tilby av eksisterende løsninger. Verftet er et av verdens største hurtigbåtverft og har siden oppstarten i 1988 bygget over 70 hurtigbåter i størrelser opp til 100 meter.
Kontrakt om bygging av to identiske fartøyer ble inngått 27. mars 1998. Verftet tok på seg det fulle og hele ansvaret for å levere fartøyene med alle gyldige sertifikater. Det tok også på seg ansvaret for de foreløpige beregninger, arrangementer og spesifikasjoner HSD hadde laget i samarbeid med Paradis Nautica. Verftet stod selv for utarbeidelse av detaljtegninger utfra føringene i den tekniske spesifikasjonen. Dette skjedde imidlertid i nært samarbed med HSD og Paradis Nautica, og slik at verftet mottok instrukser fra oppdragsgiver hva angikk de ulike detaljer.
Etter at kontrakt var inngått, ble det opprettet en styringsgruppe i rederiet som tok opp de enkelte problemstillinger som oppstod i byggefasen. HSD bygget opp en organisasjon i Henderson for å følge byggearbeidet, og i byggeperioden var det til enhver tid flere representanter fra HSD til stede.
Byggearbeidet startet opp umiddelbart etter at kontrakten var inngått. Kjølstrekk for MS Sleipner – byggenummmer 83 – var 28. juni 1998. Fartøyet ble sjøsatt 24. februar 1999. Etter prøveturer ble det skipet til Norge 10. april 1999. Det ankom Bergen 6. mai 1999 og ble da brakt til Oma Slipp på Stord, hvor det ble ferdigstilt. Formell overlevering skjedde 18. august 1999. Fartøyet ble døpt 21. august 1999 og satt i rute fra 25. august 1999.

Figur 4.1 Bilde av MS Sleipner

Figur 4.2 MS Sleipner – profiltegninger
4.1.2 Generelt om fartøyet – størrelse, kapasitet og fart
MS Sleipner er en passasjerkatamaran bygget i samsvar med HSC-kodens krav for fartøy i kategori A og kravene etter Det Norske Veritas Rules for High Speed and Light Craft. Fartøyets hovedtall etter endelige tegninger og sertifikater følger av tabell 4.1.
Tabell 4.2 Hovedtall MS Sleipner
| Lengde over alt | 42,16 meter |
|---|---|
| Lengde i vannlinjen | 40,90 meter |
| Bredde – fra innsiden av hudplatene | 12,50 meter |
| Høyde fra baselinje til våtdekk | 2,90 meter |
| Høyde fra baselinje* til hoveddekk, akter | 4,02 meter |
| Høyde fra baselinje til øvre passasjerdekk, akter | 6,6 meter |
| Høyde fra baselinje til værdekk, akter | 9,2 meter |
| Maksimal dyptgående forut | 1,76 meter |
| Maksimal dyptgående akter | 1,71 meter |
| Fart (service) | 35 knop |
| Brutto tonnasje | 375 tonn |
| Maksimalt antall passasjerer | 358 |
Kilde: * Baselinje: linje parallell med vannlinjen – når fartøyet ligger nedlastet til konstruksjonsdyptgåendet – gjennom oversiden av bunnplatene på det laveste punktet av skroget.
4.1.3 Klassebetegnelsen
Det Norske Veritas utstedte klassesertifikat 27. juli 1999. Fartøyet fikk klassebetegnelsen X 1A1 HSLC R2 Passenger E0.
X 1A1 HSLC er hovedklassebetegnelsen, og innebærer at skrog, maskineri og utrustning er utført i samsvar med regelkravene i Rules for High Speed and Light Craft. HS betyr at fartøyet oppfyller hurtigbåtformelen nevnt i pkt. 3.2.2 ovenfor. Som det fremgår der, oppfyller MS Sleipner denne formelen. LC innebærer at fartøyet defineres som «Light Craft». Kriteriet for dette er at fartøyets deplasement ved full last ikke overstiger verdien av følgende formel: (0,13 x lengde x bredde)1,5 . Med MS Sleipners lengde og bredde (uttrykt i meter) innsatt i formelen, blir maksimalt tillatt deplasement ca. 500 tonn. Dette er klart over MS Sleipners maksimale deplasement, som var på ca. 200 tonn. MS Sleipner oppfyller altså klassens krav for notering LC.
R2 er en klassenotering som innebærer at fartøyet ikke opererer mer enn en bestemt distanse fra nærmeste havn eller lukket farvann. Avstanden vil variere etter årstidene – for R 2 er distansen 50 nautiske mil vinterstid.
Noteringen Passenger er en klassenotering som innebærer at fartøyet er bygget etter DNVs særkrav for passasjerfartøy.
Noteringen E0 innebærer at fartøyet kan operere med ubetjent maskinrom. Kravet er at hovedfunksjonene er utstyrt med instrumentering og automatisjonsutrustning slik at fartøyet i alle situasjoner, også ved manøvrering til og fra kai, kan fremføres med samme sikkerhet som om maskinrommet var bemannet.
I «Appendix to Classification Certificate» er det innført en fartsrestriksjon som avhenger av den aktuelle signifikante bølgehøyden.
Her finnes det en forskjell sammenholdt med fartøy som ikke omfattes av Rules for High Speed and Light Craft. For fartøy klasset etter vanlige klasseregler er det opp til kapteinens bedømmelse og ansvar å sette ned farten i dårlig vær/grov sjø for at fartøyet ikke skal bli overbelastet styrkemessig sett. For fartøy som bygges etter Rules for High Speed and Light Craft skal kapteinen i tillegg holde seg innenfor en fart angitt av klasseselskapet og som varierer etter bølgehøyden. Når denne fartsbegrensningen fastsettes, vil klasseselskapet ta hensyn til fartøyets styrke, dets akselerasjoner i forskjellige bølgesystemer og evne til å tåle grov sjø.
Fartsbegrensningen angis i signifikant bølgehøyde. Med bølgehøyde menes høydeavstanden fra bølgedal til bølgetopp, og signifikant bølgehøyde er middelverdien av den høyeste tredjedelen av bølgene. For MS Sleipner utferdiget Det Norske Veritas krav til hastighetsreduksjon som fremgår av tabell 4.2.
Tabell 4.3 Krav til hastighetsreduksjon etter vedlegg til klassesertifikat
| Signifikant bølgehøyde (meter) | Maksimalt tillatt hastighet (knop) |
|---|---|
| 0,0 – 0,5 | 35 |
| 0,5 – 1,0 | 30 |
| 1,0 – 2,0 | 25 |
| 2,0 – 3,0 | 20 |
| 3,0 – 3,5 | 15 |
| over 3,5 | søk beskyttet farvann i sakte fart |
Tabellen ble inntatt i Driftshåndbok for MS Sleipner pkt. 8.1.8 med beskjed om at restriksjonene skulle følges.
4.2 Strukturell oppbygning av fartøyet
4.2.1 Oversikt
MS Sleipner er et katamaranskrog bestående av to skrogpongtonger forent med en brokonstruksjon, se figur 4.3.

Figur 4.3 Typical transverse frame and typical bulkhead, looking aft
Brokonstruksjonen er det primære virkemiddelet for å ivareta fartøyets tverrskipsstyrke. Øvre del av brokonstruksjonen utgjør hoveddekket (main deck), som dessuten er det nedre passasjerdekket. Den nedre delen av brokonstruksjonen – mellom pongtongene – utgjør våtdekket (wet deck). Ovenfor hoveddekket finnes et øvre passasjerdekk (upper deck), med omtrent samme areal som det nedre passasjerdekket. Taket ovenfor øvre passasjerdekk utgjør værdekket (weather deck). På den fremre delen av værdekket er broen plassert. Værdekket er ikke tilgjengelig for passasjerene.
4.2.2 Anvendt skrogmateriale
MS Sleipners skrog er i sin helhet bygget i aluminium. Anvendte materialtyper fremgår av tabell 4.3.
Tabell 4.4 Anvendt skrogmateriale MS Sleipner
| Materiale: | Anvendt til: |
|---|---|
| AA 5059 (Alustar) | tverrammer (web-frames) |
| NV 5083 | hudplater |
| NV 5383 | hudplater |
| NV 6082 | ekstruderte profiler |
MARINTEK ved professor Torgeir Moan fra NTNU i Trondheim har analysert prøver fra utvalgte deler av fartøyet og har bekreftet at oppgitt materialbruk samsvarer med faktisk materialbruk. 1
«Alustar» – som ble benyttet i tverrammene – ble introdusert i 1997 og er en aluminiumskvalitet godkjent av Det Norske Veritas i mai samme år.
Materialet har en noe høyere styrke både som basismateriale og i sveiset form enn for eksempel det konvensjonelle materialet NV 5083. 2 I andre sammenhenger, som for eksempel hva angår seighet og korrosjonsegenskaper, er egenskapene helt sammenfallende.
4.2.3 Rommene under hoveddekket
4.2.3.1 Arrangement og disposisjon av underrommene
Fartøyet er langskipsspantet, der langskipsstivere (longitudinaler) bæres av tverrammer (web-frames) med en rammeavstand på 1,2 meter. Disse tverrammene tar sammen med de seks vanntette skottene hånd om fartøyets tverrskipsstyrke. Tverramme 0 befinner seg i forkant av det forhøyde hoveddekket helt i fronten. Ramme 34 lengst akter befinner seg i akterspeilet.
Under hoveddekket er fartøyet i hver av pongtongene inndelt i syv vanntette seksjoner, fradelt med seks vanntette skott, som ligger på spant 4, 9, 15, 20, 28 og 32. Disse omtales i det følgende som skott 4, 9 osv., se figur 4.4.

Figur 4.4 Starboard and port pontoon
Rommene i hver av pongtongene er anvendt slik:
Foran skott 4, hvor også kollisjonsskottet befinner seg, finnes forpiggen.
I rommet mellom skott 4 og skott 9 finnes et såkalt «void» rom, uten maskineri eller annen vesentlig utrustning.
Rommet mellom skott 9 og skott 15 kalles «auxilliary tank room». I styrbord pongtong finnes en ferskvannstank, i babord pongtong finnes en tilsvarende tank for svart- og gråvann.
I det fjerde rommet regnet forfra, mellom skott 15 og skott 20, finnes «main tank room». Her finnes samtlige drivstofftanker, samt utrustning for klimaanlegg. I babord pongtong er også likeretter for tavle 1L og batteri for overgangsnødkraftkilden plassert, se nedenfor i pkt. 4.3.2.3. I rommet finnes videre hovednedgangen til maskinrommet, en stige med 45 graders helning. Inngang til maskinrommet skjer gjennom en vanntett dør i akterkant av rommet – gjennom skott 20.
I rommet mellom skott 20 og skott 28 finnes maskinrommet. Rommet inneholder hovedmotor med reduksjonsgir og propellaksel, samt generatoraggregat (hjelpemotor og generator) og hoved el-tavle (main switchboard). Propellakselen er med helling og hylselageret plassert i tilslutning til skott 28. For å beholde styrken i strukturen i tilfelle av brann i maskinrommet er det over vannlinjen i samsvar med HSC-kodens regler brannisolert med A-60 isolering.
Inngang til det sjette rommet, med betegnelsen «aft void», mellom skott 28 og skott 32, skjer gjennom vanntett dør i skott 28. Her finnes en del av den hydrauliske utrustningen for styremaskinen og «ride control»-systemet. Rommet utgjør også rømningsvei fra maskinrommet.
Akterpiggen finnes aktenfor skott 32 frem til «transom stern». I dette rommet finnes selve styremaskinen, og en del av den hydrauliske utrustningen for «ride control»-systemet.
Tverrskips er brokonstruksjonen avgrenset i styrbord og babord fra hver av pongtongene med vanntette langskipsstivere fra våtdekk og opp til hoveddekket, se figur 4.3 ovenfor.
De seks tverrskipsskottene i hver pongtong slutter opp mot disse langskipsstiverne. Området som avgrenses av langskipsstiverne, våtdekket og hoveddekket utgjør et sammenhengende rom fra forut til akter.
Strukturelt sett er konstruksjonen gjort for at dette rommet skal være vanntett. Kommisjonens inspeksjon av søsterfartøyet MS Draupner 10. desember 1999 viste at flere av rør- og kabelgjennomføringene i disse langskipsveggene ikke var tette – man kunne se igjennom dem. Som følge av skadene på vraket har det ikke vært mulig å konstatere om MS Sleipner hadde tilsvarende mangler.
Nedgang til de tre fremre rommene i hver av pongtongene og til akterpiggen skjer gjennom ellipseformede vanntette luker plassert i det vanntette hoveddekket. Det er en luke til hvert av rommene. Til brokonstruksjonen mellom pongtongene finnes to luker av samme type, en plassert akter om tverramme 14 og en plassert akter om tverramme 29.
Kommisjonens inspeksjon på søsterfartøyet MS Draupner 10. desember 1999 avdekket at det ikke fantes noen indikasjon på om disse lukene var stengt eller ikke. Man må kjenne på luken for å avdekke om den er stengt. Som kommisjonen vil komme tilbake til i pkt. 6.4.2, viste det seg etter grunnstøtingen at en luke ikke var stengt.
Politiets besiktigelse av vraket påviste at lokket på ett av de to mannhullene i langskipsstiveren inn til brokonstruksjonen ikke var på plass.
4.2.3.2 Kontroll av arbeidskvalitet, styrke og dimensjoner
Under prøvetur og i den første driftsmåneden ble det oppdaget sprekker på MS Sleipner. Sprekkene var dels lokalisert til bulbpartiet og til dels i tilslutning til propellhylsen. Bulbsprekkene kom av vanskeligheter med adkomsten til sveiseområdet på innsiden, problemene med propellhylsen var typiske vibrasjonssprekker. Etter reparasjon ble problemene løst.
Det har fra flere hold vært reist enkelte spørsmål knyttet til MS Sleipners tilstand forut for ulykken.
For å få brakt på det rene om MS Sleipner var bygget i samsvar med gjeldende standarder, engasjerte kommisjonen MARINTEK for å gjøre en stikkprøveanalyse av styrken på visse partier av fartøyet, og for å vurdere om fartøyet var bygget i samsvar med gjeldende industristandarder. 3 Analysen var basert på
Det Norske Veritas’ «Rules for High Speed Light Craft» og «Classification Notes» av juni 1996,
tegninger fra verftet,
inspeksjon av vraket etter MS Sleipner og
inspeksjon av søsterfartøyet MS Draupner.
MARINTEKs rapport viser at utførelsen av arbeidet generelt er av god kvalitet. At arbeidet er godt utført, forsterkes også av at sveis på baugpartiet mellom plater og spant har vist en påfallende seighet, til tross for de store kreftene fartøyet er blitt utsatt for etter grunnstøtingen.
Hva angår den strukturelle styrken, har MARTINTEK kontrollert visse utvalgte bordleggingspartier med langskipsspant og plater. Disse oppfylte Det Norske Veritas’ krav.
Tverrskipsramme 17 er blitt undersøkt hva angår tverrskipsstyrken. Denne styrken blir normalt undersøkt ved hjelp av en mer eller mindre sofistikert FEM-beregning (Finite Element Model). MARINTEK anvendte en todimensjonal rammeberegning, mens verftet har gjort en større tredimensjonal rammeberegning som strekker seg fra skott til skott. Etter sammenligning av beregninger, belastninger og innspenningsmoment, samt hensyntagen til asymmetrier i den todimensjonale rammen, viser resultatet at spenningsnivåene ved forskjellige belastninger ligger godt innenfor klassens krav.
Rapporten konkluderer slik:
«The assessment of the design did not reveal any deficiency. Rather, the limited examination of two design and fabrication made, give an impression of a well designed and fabricated vessel compared to the current industry standard …»
Det har fra enkelte hold vært reist spørsmål om langskipsstyrken på MS Sleipner har vært tilstrekkelig. Kommisjonen vil fremheve at det ikke finnes skrogdimensjoneringskriterier i HSC-koden eller klassereglene som tar hensyn til en eventuell grunnstøting eller kollisjon, verken hva angår krav til lokal styrke eller global styrke, se pkt. 3.3.1 ovenfor. Det må likevel fremheves at det klart nok finnes et innebygget krav til langskipsstyrke i de gjeldende dimensjoneringskravene.
Kommisjonen har ikke funnet grunnlag for å undersøke MS Sleipners langskipsstyrke spesielt. Ved dimensjonering av et fartøy av MS Sleipners størrelse, med lengde mindre enn 50 meter, gir de lokale styrkekravene og kravene til tverrskipsstyrke alltid krav til materialdimensjoner som overstiger kravene som en beregning av langskipsstyrken skulle medføre. Med andre ord blir langskipsstyrken ivaretatt gjennom en lokal styrkeberegning som inkluderer en beregning av tverrskipsstyrken. Når fartøyet oppfyller gjeldende krav til tverrskipsstyrke og lokal styrke, er dermed også langskipsstyrken tilstrekkelig.
4.2.4 Overlevelsesevne etter skade
4.2.4.1 Overlevelsesevne etter nåværende krav i HSC-koden
HSC-kodens krav til fartøyets overlevelsesevne etter skade er kort omtalt i pkt. 3.3.2 ovenfor. Som nevnt i pkt. 3.3.1 stiller HSC-koden og Det Norske Veritas’ klasseregler ikke noen deterministiske krav til antallet tverrskipsskott eller antallet langskipsskott vertikalt eller horisontalt. Derimot angir de funksjonelle krav til flyteevne og stabilitet i intakt og skadet tilstand.
Den tenkte skaden som er definert i HSC-koden kap 2.6.6 og kap 2.6.7, er som nevnt en skade som kan plasseres hvor som helst langs skroget, definert fra to situasjoner: sideskade (kollisjon) og bunnskade (grunnstøting).
Skadeutstrekningen i lengde, bredde og høyde er en funksjon av fartøyets lengde og bredde. For Sleipner, som et kategori A fartøy, følger skadebildet av tabell 4.4.
Tabell 4.5 Beregning av skadeomfang på MS Sleipner etter HSC-koden
| Sideskade | Bunnskade | |
|---|---|---|
| Lengde | 4,2 meter | 4,2 meter |
| Bredde | 2,1 meter | full bredde (= begge skrogene) |
| Høyde | full høyde (= 4,2 meter) | 0,25 meter |
Med MS Sleipners skottplassering og skadebildet i tabell 4.4 gående langs skroget, blir konsekvensen/kravet at to inntilliggende rom kan skades og bli fylt med vann – en såkalt «two-compartment» skade.
Fartøyets trim- og stabilitetsbok oppfyller samtlige kombinasjoner av nevnte skade. Videre oppfyller fartøyet kravene til reservedeplasement og stabilitet etter slik skade.
Det er ikke ellers fremkommet opplysninger etter ulykken som tyder på at fartøyet ikke oppfylte kravene til overlevelsesevne. De skader fartøyet fikk ved grunnstøtingen, var betydelig mer omfattende enn skadene HSC-koden krever at fartøyet skal være i stand til å tåle.
4.2.4.2 Overlevelsesevne etter forslaget til revidert HSC-kode
IMO utarbeidet i 1999 et forslag til revisjon av HSC-koden, DE 43/4 av 24. juni 1999. Her foreslås blant annet at bunnskaden nevnt ovenfor, kompletteres med en såkalt «raking»-skade.
I mai 2000 overleverte en egen arbeidsgruppe «Report of the Intersessional Working Group on the revision of stability and load line aspects of the HSC Code». Her foreslås endringer i omfanget av den definerte bunn- og sideskaden samt en ny skadesituasjon – en såkalt «raking»-skade.
«Raking»-skaden er beskrevet som en skade på et hudplateareal som strekker seg fra bunnen av fartøyet og opp til en linje som går fra fartøyets forkant ved konstruksjonsvannlinjen og videre akterover til et punkt midtskips som ligger 30 % av fartøyets dyptgående under konstruksjonsvannlinjen. Fra dette punktet går skaden akterover parallelt med vannlinjen til fartøyets akterspeil. Skaden skal ikke forekomme samtidig med sideskade eller med normal bunnskade.
Den foreslåtte skadesituasjonen for en «raking»-skade er inntegnet i figur 4.5. Et kategori B-fartøy skal tåle en skade som strekker seg over hele det grønne arealet. Et kategori A-fartøy skal tåle en skade som går fra baugen og akterover i halve fartøyets lengde (merket 0.5 * L i figuren).

Figur 4.5 Proposed amendment, regarding raking damage
Hvis MS Sleipner var bygget i samsvar med utkastet til nye regler, ville utstrekningen av bunn- og sideskaden og «raking»-skaden blitt som oppskilt i tabell 4.5.
Tabell 4.6 Beregning av skadeomfang på MS Sleipner etter endringsforslag til HSC-koden
| Sideskade: | Bunnskade: | «Raking»-skade | |
|---|---|---|---|
| Lengde | 4,3 meter | 4,3 meter | 22,9 meter regnet fra fartøyets forkant eller 12,9 meter hvor som helst på fartøyet |
| Bredde | 1,2 meter | 1,2 meter | 0,59 meter |
| Høyde/dypde | Full høyde | 0,12 meter | 0,24 meter |
Kravene til skadelengde ved bunnskade og sideskade blir med andre ord ikke særlig forandret. Breddekravet blir redusert. Den store forskjellen kommer imidlertid som følge av kravet til at fartøyet skal kunne overleve en «raking»-skade.
Som nevnt er MS Sleipner et såkalt kategori A-fartøy. Hvis fartøyet hadde tilhørt kategori B i HSC-koden, ville lengden av raking-skaden utgjort 100 % av fartøyslengden.
Det er likevel klart at skadebildet stiller krav til en helt annen overlevelsesevne for fartøyer, og at det vil kreve andre konstruksjonsløsninger hva angår fartøyets inndeling.
Generelt innebærer en slik endring at «void spaces» må bygges inn på et høyt nivå, for eksempel umiddelbart under hoveddekket. For mindre fartøy blir «void spaces» for små til å gi tilstrekkelig god tilgjengelighet for sveising under byggeperioden. Disse kan da erstattes med lette flyteelementer som er bygget opp av lukkede celler. Dette vil gi nødvendig løftekraft.
For et nybygg av MS Sleipners type og størrelse blir konsekvensene for konstruksjonen ganske små. Med følgende eksempel beholdes flyteevnen og tilstrekkelig gjenværende stabilitet for å klare en «raking»-skade i fartøyets fulle lengde:
Brokonstruksjonen mellom pongtongene ligger klart nok utenfor den tenkte skadesituasjonen, men bør likevel hensiktsmessig inndeles tverrskips med vanntette skott i for eksempel fire compartments, hvorav ett vanntett skott i linje med forpiggskottet.
Brokonstruksjonens avgrensning mot styrbord og babord pongtong med vanntette langskipsstivere opprettholdes.
Horisontale, vanntette stringerdekk plassert i styrbord og babord pongtong i det minste to compartments, om mulig foran og akter om midtskips. Disse stringerdekk plasseres ovenfor konstruksjonsvannlinjen og begrenser da skadepotensialet til rommet under stringerdekket.
Alle nedgangsdører og luker til rommene under hoveddekket må være vanntette. Dette var tilfellet på MS Sleipner. Ved gange i sjøen må lukene også være lukket.
4.2.4.3 Vurdering av endringsforslaget
Etter kommisjonens oppfatning er det positivt at kravene til overlevelsesevne etter skade er foreslått skjerpet. «Raking»-skaden synes i så henseende å være en egnet skadetilstand som tillegg til dagens krav.
På bakgrunn av Sleipner-ulykken vil kommisjonen likevel fremføre følgende kritiske synspunkter til det nevnte revisjonsforslaget:
Det er uheldig at skadeomfanget for passasjerfartøyer etter HSC-koden skal avhenge av om fartøyet er i kategori A eller B. Et kategori A-fartøy vil i prinsippet kunne befinne seg nærmere kysten enn et kategori B-fartøy. Regelmessig vil et kategori A-fartøy være mindre enn et kategori B-fartøy. Om en skade som overstiger det tenkte skadescenariet inntreffer på et mindre fartøy, vil tiden før det går ned, regelmessig være kortere enn hva tilfellet vil være på et større fartøy. Kravet til evakueringstid er i dag det samme for alle størrelser av fartøy. Etter kommisjonens oppfatning er det da ikke logisk at det mindre fartøyet skal ha mindre overlevelsesevne, og dermed kortere overlevelsestid, enn et større fartøy.
Målet for passasjerfartøyet er å oppnå en økt overlevelsesevne, slik at tørrskodd evakuering av passasjerene skal være mulig. To fartøy med like dimensjoner og samme størrelse kan tilhøre enten kategori A eller B. Med samme fart, struktur og styrke får fartøyene nøyaktig samme skade i en ulykkessituasjon.
MS Sleipners bunn ble revet opp fra forut til akter. Dette skadescenariet bekrefter nyere teoretiske beregninger som viser at sannsynligheten er meget stor for at kombinasjonen av høy fart og lett konstruksjon kan forårsake at hele fartøyets bunn blir revet opp ved en grunnstøting. Fartøyets lengde har liten innvirkning på fartøyets skadelengde når den uttrykkes i prosent av fartøyslengden. 100 % av fartøyslengden bør derfor være den fremtidige størrelsen for «raking»-skade både på passasjerfartøy i kategori A og kategori B.
Skadebredden og inntrengingsdypet i «raking»-skaden synes å være alt for små. På bakgrunn av Sleipner ulykken er det nærliggende å anta at hele volumet innenfor det ovenfor definerte «raking»-området kan bli utsatt for skade. Den foreslåtte definisjonen av inntrengingsdypet etter «raking»-skade er

Figur 4.6
Dette innebærer for MS Sleipner en inntrengingsdybde på 0,24 meter og for større fartøy aldri mer enn 0,5 meter. I virkeligheten vil det være lite realistisk å tenke seg en skade som er begrenset til mindre enn to desimeter langs hele fartøyets lengde. Videre vil det være upraktisk, tidvis umulig å anvende reglen og i MS Sleipners tilfelle bygge dobbel hud med noe over to desimeter mellom lagene. Løsningen blir, som det er angitt ovenfor, å bygge en form for horisontale stringerdekk. Av denne grunn burde formelen kunne tilpasses noe mer til virkeligheten. Et kompromissforslag kunne være

Figur 4.7
Dette vil for MS Sleipner innebære en inntrengingsdypde på 0,6 meter og for større fartøy aldri mer enn 1,0 meter.
To regelfilosofier kan lett spores i den historiske utviklingen med hensyn til hvilke krav som stilles til fartøyets egenskaper etter skade:
A: Mindre skadebilde, men sterkere krav til krengningsvinkelen etter skade, for eksempel at denne ikke overskrider 10 grader etter at likevekt er oppnådd.
B: Større skadebilde, større krav til overlevelsesevne uten at fartøyet synker, men større toleranse hva angår endelig krengningsvinkel, for eksempel 20 grader.
Fartøyets overlevelsesevne/flyteevne er viktigst, dvs. at fartøyet flyter etter skade. Krengningsvinkelen etter skade er mindre viktig sammenholdt med flyteevnen. Alternativ B gir derfor generelt sett det største bidraget til økt sikkerhet.
Kommisjonen vil i pkt. 12.3.1 fremme anbefalinger på denne bakgrunn.
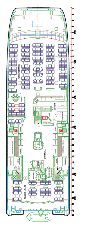
4.2.5 Hoveddekk – nedre passasjerdekk
Hoveddekket på MS Sleipner har 199 sitteplasser. Akter om midtskips er hoveddekket stort sett symmetrisk arrangert, se figur 4.6.

Figur 4.8 Main deck
Ombordstigning til fartøyet skjer på dette dekket – enten på styrbord eller babord side – omtrent på høyde med tverramme 26 (se tallinje på figuren). Via skyvedører kommer man inn i entréhallen. I hallen finnes bagasjehyller, billettkontor og toaletter. Akter om hallen finnes en «smoking lounge» med plass til 45 passasjerer med inngang fra babord. I forkant av hallen ved senterlinjen finnes oppgang til det øvre passasjerdekket. Styrbord av denne trappen finnes en kiosk. På babord side finnes et rom for kjæledyr og lekerom for barn, med til sammen 18 sitteplasser. Mellom trappen og lekerommet finnes en forbindelse til fremre salong som har plass til 136 passasjerer. Den fremste stolraden finnes akter om tverramme 6 – 7,5 meter akter om baugen. Fronten består av glassruter med helling. I senterlinjen i fronten finnes en dør med adkomst til fordekket med fortøyningsarrangement.
På det åpne dekket akter finnes tilsvarende fortøyningsutrustning samt adkomst til MOB-båten, som henger i davit i senterlinjen aktenom akterspeilet.
Flåtene – to på hver side av fartøyet – er plassert på en nedsenket del av hoveddekket mellom tverramme 28 og 32. Evakueringen skjer fra denne fordypningen i siden på hoveddekket. Se figur 4.11 nedenfor.
I korridoren mellom stolradene i salongen forut finnes fire vanntette luker for nedgang til rom 2 og 3 i pongtongene. I senterlinjen rett foran kiosken finnes en luke som fører ned til brostrukturen mellom pongtongene. I senterlinjen av den aktre salongen finnes en luke som fører ned til aktre del av brostrukturen. Lukene er inntegnet i grått på figur 4.6.
Det avsløres ikke ved visuell inspeksjon hvorvidt disse lukene er lukket eller ikke. Hvis luken ikke er lukket, vil den ikke være vanntett. Hendelen som låser den vil ligge nede i et spor med samme stilling uavhengig av om den er åpen eller lukket. Man må derfor kjenne på denne hendelen for å få konstatert om luken er lukket eller ikke.
4.2.6 Øvre passasjerdekk
På øvre passasjerdekk finnes 159 sitteplasser. Dekket er oppdelt i en aktersalong med 133 sitteplasser samt en mer eksklusiv fremre salong med frontutsikt og 26 sitteplasser. Se figur 4.7.

Figur 4.9 Upper deck
På hver side forut for den fremre salongen er det rom for luftkondisjoneringsanlegget. I senter akter om trappen finnes en kiosk. Forut for trappen er det et eget rom for besetningen og i tilknytning til dette en trapp opp til broen. Dekket under broen er brannisolert med A-30 isolering. Akter om tverramme 28 og 29 finnes et stort åpent dekk, ca. fem meter langt og ni meter bredt. Avgrensningen til sidene utgjøres av skorsteinskappene og av et rekkverk. Adkomsten til dekket skjer gjennom en glassdør i senterlinjen fra den aktre salongen. På hver side av dekket finnes dessuten en åpen trapp som fører direkte ned til evakueringsområdet. Nødgenerator og nødtavle er plassert i et separat rom på babord side akter om skorsteinskappen.
4.2.7 Værdekk med styrehus
Trappen som går tverrskips opp til broen slutter i senterlinjen. På babord side av trappen er maskinsjefens arbeidsplass. På styrbord side umiddelbart forut for trappen finnes plass for matrosen og forut for denne igjen er kartbordet plassert. Umiddelbart akter for trappen, i broens akterkant, er det plassert et kontor. Aktenfor maskinsjefens arbeidsplass finnes bokhyller med manualer og annen obligatorisk litteratur, VHF-håndsett og en liten benk. Se figur 4.8.

Figur 4.10 Bridge deck
I forkant av broen finnes cockpitarrangement for kapteinen og overstyrmannen. Broen har 360 graders utsikt med foroverhellende frontvinduer (nærmere 30 grader) for å unngå solrefleks. Sikten forover er meget bra. Broen savner brovinger, men har utgangsdør i akterkant av senterlinjen som leder til det åpne værdekket. Om navigasjonsutrustningen på broen, se pkt. 4.5 nedenfor.
4.2.8 Konklusjoner – strukturell oppbygning av fartøyet
Kommisjonen legger til grunn at MS Sleipner er bygget etter gjeldende krav både hva angår styrke og utføring av arbeidet. Tilsvarende legges det til grunn at fartøyet er bygget i samsvar med HSC-kodens krav til den strukturelle utførelsen, arrangement, vanntett inndeling, stabilitet og flyteevne. Dette gjelder både som intakt fartøy og etter skader som definert i HSC-koden.
Kommisjonen vil likevel påpeke at de vanntette lukene i hoveddekket ikke ga visuell informasjon om hvorvidt de var lukket eller ikke, se pkt. 4.2.5 ovenfor. Hvis lukene ikke er stengt, vil økt trykk nedenifra kunne blåse dem opp.
Dette skjedde med i hvert fall én av lukene etter grunnstøtingen, hvilket bidro til at dette rommet under hoveddekket mistet oppdrift. Det er dessuten påvist på vraket at mannluker i de vanntette langskipsstivere til brokonstruksjonen mellom pongtongene ikke var påmontert. Som en følge av dette kan man legge til grunn at tiden som gikk før fartøyet sank ble forkortet.
Det er på det rene at skadescenariene som beskrives i den någjeldende HSC-koden ikke på langt nær omfatter de skadene som kan oppstå i virkeligheten. Det er derfor viktig at man kompletterer HSC-koden med krav om at fartøyet skal holde seg flytende også ved såkalte «raking»-skader. Kommisjonen vil gjøre nærmere rede for dette i pkt. 12.3.1.
4.3 Propulsjon, elektrisk system og styring
4.3.1 Fremdriftsmaskineri
Hovedmaskineriet er symmetrisk oppbygget i de to pongtongene. I hver av pongtongene finnes en MTU diesel, som via reduksjonsgir driver propellene. Propellene har variabel stigning. Hovedtallene fremgår av tabell 4.6.
Tabell 4.7 Hovedtall fremdriftsmaskineri MS Sleipner
| Hovedmotor | MTU 16V 4000 M70 | MCR 2320 kW | 2000 omdreininger pr. minutt |
|---|---|---|---|
| Reduksjonsgir | ZF BU 754 Servogir. CPP | ||
| Propeller | 4-bladet | diameter 1500 mm | 583 omdreininger pr. minutt |
Motor, gir og propellaksel har en kraftig helling, ca. fire grader akterover/nedover, og passerer hylsen i det aktre maskinromskottet ved tverramme 28. Både motor og reduksjonsgir sitter på forsterkede langskipsstivere. Fartøyet har ikke noen form for dobbel bunn i maskinrommet. Bak hylsen løper propellakselen fritt med en akselstøtte på tverramme 30. Propellen sitter på høyde med tverramme 33. Akterkanten på navet utgjør den siste akselstøtten, og er fast forbundet med den faste delen av roret. Sentrum av propellene sitter omtrent i høyde med fartøyets baselinje. Med andre ord er halve propellen under det dypeste punktet på fartøyet når fartøyet er uten trim, dvs. på «even keel».
4.3.2 Elektrisk system
4.3.2.1 Produksjon av elektrisitet
I akterkant av maskinrommene i hver av pongtongene, aktenfor reduksjonsgiret og på utsiden av propellakselen, er det montert generatoraggregater for produksjon av elektrisk kraft. Ved siden av aggregatene, på innsiden av propellakselen, finnes hoved el-tavlene. Nødgenerator finnes i akter på øvre passasjerdekk, i et rom under babord skorstein. Hovedtallene fremgår av tabell 4.7.
Tabell 4.8 Hovedtall for elektrisk anlegg MS Sleipner
| Hjelpemotor | Cummins 6CT-8.3-G | effekt: 163 kW | 1500 omdreininger pr. minutt |
|---|---|---|---|
| Generator | Newage UC.M274H | effekt: 136 kW | 1500 omdreininger pr. minutt |
| Nøddiesel | Deutz F2L 1011F | effekt: 7,5 kW | 1500 omdreininger pr. minutt |
| Nødgenerator | MECC ALFA ECSN28–2L/4 |
4.3.2.2 El-systemets oppbygning
Under normale driftsforhold leverer hovedgeneratorene/hovedtavlene i styrbord og babord pongtong 400 V vekselstrøm til ulike fordelingstavler som befinner seg i pongtongene, på hoveddekket, på øvre passasjerdekk samt til fordelingstavle L i styrehuset. Denne tavlen leverer 230 V vekselstrøm til navigasjonslys, alminnelig belysning, radar, kartsystem, CCTV-system (intern-TV) m.m. Se figur 4.9.

Figur 4.11 MS Sleipner: Part of AC and DC Distribution Line Diagram
Fordelingstavle L leverer i normaltilfeller i tillegg strøm til nødtavle K, som deler rom med nødaggregatet akter på øvre passasjerdekk. Om noe hender med hovedgeneratoren i styrbord og babord maskinrom, overtar nødgeneratoren strømforsyningen til nødtavlen. Nødtavlen K er sperret mot samtidig strømforsyning fra tavle L og nødgeneratoren. Nødtavlen leverer 400 V vekselstrøm til blant annet stikkontakter til nødlensepumper og kontrollsystem til hovedmaskineriet. Nødtavlen leverer dessuten 230 V vekselstrøm til brannovervåkningssystemet, CO2 -panelet og PA-anlegget. VHF og GMDSS får strøm fra nødtavlen via likerettere og batteriladere.
Nødtavlen leverer også via likerettere U 005 og U 007, plassert sammen med overgangsnødkraftkilden G 005 i babord pongtong, 24 V likestrøm til fordelingtavle 1L som finnes på broen. Denne tavlen leverer 24 V likestrøm til blant annet GSM og NMT mobiltelefoner, backup for PA- og intercom-anlegg, kontrollsystem for styring, autopilot, navigeringsinformasjon, backup for navigeringslys samt nødlys inne i og utenfor fartøyet.
Ved bortfall av hovedgeneratorene/hovedtavlene skal nødgeneratoren starte og kunne gi full effekt innen 45 sekunder. I denne perioden skal overgangsnødkraftkilden forsyne nødtavle 1L med nødvendig kraft. Overgangsnødkraftkilden består av en batteribank som lades gjennom likerettere fra nødtavle K.
4.3.2.3 Faktisk plassering av nødkraftkomponentene
Kommisjonen har i pkt. 3.3.3 ovenfor redegjort for HSC-kodens krav til plassering av de enkelte nødenhetene.
Analyse av tegninger og inspeksjon av vraket etter MS Sleipner og søsterskipet MS Draupner har vist at plasseringen av nødgeneratoren og nødtavlen er i samme rom babord akter på øvre passasjerdekk. Dette er en tjenelig plassering, og helt i samsvar med HSC-koden og de godkjente tegningene.
Under de åpne møtene på Stord 6.–8. desember 1999 kom det frem at nødstrømmen hadde sviktet etter grunnstøtingen. Som følge av disse opplysningene undersøkte Det Norske Veritas av eget tiltak anlegget på MS Draupner. Her ble det avdekket at batteribank, likeretter og batterilader for overgangsnødkraftkilden samt likeretter på forbindelsen mellom tavle K og 1L delvis var plassert i rommet foran hovedmotoren i babord pongtong. Det var derfor grunn til å anta at det samme var tilfellet på MS Sleipner. Kommisjonen ble meddelt dette i brev 14. desember 1999. Etter DNVs syn «kunne det diskuteres hvorvidt deler av nødstrømsutstyret var plassert korrekt.» Klasseselskapet kunne videre fortelle at etter en av de godkjente tegninger, skulle utstyret ha vært plassert delvis på broen og delvis på øvre dekk. I så fall ville klassekravene og HSC-koden ha vært fullt ut tilfredsstilt.
Kommisjonen har hatt en omfattende korrespondanse og møtevirksomhet med verftet, Produkt- og elektrisitetstilsynet og Sjøfartsdirektoratet om plasseringen av overgangsnødkraftkilden, blant annet for å få avdekket om plasseringen var over eller under endelig skadevannlinje. I tillegg har kommisjonen hatt møte med Det Norske Veritas stedlige representant i Fremantle, som forestod inspeksjonen av nødstrømsanlegget på MS Sleipner. Aker Elektro AS og Ship & Offshore Surveyors AS har utredet spørsmålet nærmere på oppdrag fra kommisjonen. Prosessen knyttet til godkjennelse og inspeksjon av overgangsnødkraftkilden vil bli behandlet i pkt. 4.8.3 nedenfor.
Her vil kommisjonen redegjøre for hva den legger til grunn med hensyn til overgangsnødkraftkildens faktiske plassering:
Inspeksjon på MS Draupner før ombyggingen og på vraket etter MS Sleipner viser at fartøyenes batteribank, batterilader og likeretter for overgangsnødkraftkilden er plassert mellom tverramme 16 og 17 i babord pongtong, i rommet forut for maskinrommet. I maskinrommet finner man hovedgenerator og hovedtavle.
Nøyaktige målinger foretatt av Aker Elektro AS på MS Draupner viser en plassering noe til styrbord for pongtongens senterlinje og nedre del, ca. 2 550 mm over skrogets baselinje. 4 På MS Sleipner var komponentene plassert noe høyere, anslagsvis 150 mm. Beregninger foretatt av verftet viser en maksimal skadevannlinje på 2 830 mm i senterlinjen midt mellom tverramme 15 og 16. 5 Ved tverramme 16 og 17 vil skadevannlinjen være noe høyere på grunn av fartøyets trim. Etter dette legger kommisjonen til grunn at overgangsnødkraftkilden var delvis plassert under skadevannlinjen.
Plasseringen er ikke i samsvar med den godkjente tegningen «083–702E-0002 Sheet 01 DC Distribution Line Diagram». Her er overgangskraftkilden plassert på broen/øvre passasjerdekk, en plassering som var fullt ut i samsvar med HSC-kodens krav.
Det er uklart hvorfor overgangsnødkraftkilden ble plassert der den ble. I følge verftet skyldes det at andre alternative plasseringer ble nektet av HSD. Det var ikke mulig å plassere den etter tegningen som følge av HSDs ønsker om broutforming. HSD på sin side hevder de ikke har motsatt seg noen spesiell plassering. Tvert i mot ble det etter HSDs utsagn diskutert plassering under trappen opp til styrehuset, hvilket ble akseptert av HSD. 6
Plasseringen av overgangsnødkraftkilden og likeretter for tavle 1L er etter kommisjonens oppfatning klart i strid med HSC-koden:
Etter HSC-koden kap. 12.3.3 skal nødkraftelementene være plassert slik at brann eller annen ulykke ikke påvirker forsyningen av nødstrøm, og der det er praktisk mulig ikke i rom som tilstøtende maskinrommet og rommet der hovedtavlen er plassert. På MS Sleipner er overgangsnødkraftkilden og likeretter for tavle 1L plassert i et rom som direkte tilstøter maskinrommet, og det er nærliggende å anta at en eksplosjon eller annen ulykke i maskinrommet ville ha satt disse elementene ut av funksjon.
Etter HSC-koden kap. 12.3.2 skal nødkraftelementene plasseres over vannlinjen ved endelig skadetilstand etter «regelskade». Det var ikke tilfellet på MS Sleipner.
Ut over dette vil kommisjonen påpeke at MS Sleipners arrangement medførte unødig lange og sårbare ledningsdrag. Fra nødtavlen akter på øvre dekk går ledningene gjennom hoveddekket og ned til likeretteren, plassert samme sted som overgangsnødkraftkilden. Deretter går ledningene samme vei tilbake, gjennom værdekket og opp til tavle 1L i styrehuset. I MS Sleipners tilfelle er det derfor mulig at ikke bare vanninntrenging, men også ledningsbrudd har vært et problem for strømtilførselen.
Det hadde ikke bare vært praktisk mulig, men også mer hensiktsmessig, om overgangsnødkraftkilden og likeretter for tavle 1L var blitt plassert på værdekket akter om broen i umiddelbar nærhet til forbrukeren.
4.3.2.4 Konklusjoner – El-systemet
Kommisjonen finner grunn til å kritisere verftet for at overgangsnødkraftkilden og likeretter for tavle 1L ble plassert som de ble. At det ikke skal ha blitt plass til den på broen, er ikke tilstrekkelig til å plassere overgangsnødkraftkilden nede i en av pongtongene.
Det kan for øvrig se ut som om den ikke fikk sin faktiske plassering som følge av en bevisst tankeprosess fra verftets side. Verftet har riktignok kunnet fremlegge en tegning, «0383–702F-0001 Sheet 3 Cable Routes Layout», hvor «Main rectifier & Battery Back Up» er plassert nede i pongtongen. Dette er visstnok overgangsnødkraftkilden. Denne er imidlertid inntegnet i styrbord pongtong og ikke i babord pongtong hvor overgangsnødkraftkilden faktisk ble plassert. Det finnes således ingen tegninger hvor overgangsnødkraftkilden er plassert der den faktisk ble montert. Det er heller ikke fremlagt dokumentasjon som viser at verftet i byggeperioden har vurdert den faktiske plasseringen av overgangsnødkraftkilden opp mot plasseringskravene i HSC-koden.
4.3.3 Ror- og stabiliseringsmaskineri
4.3.3.1 Rormaskineri
Fartøyet styres ved hjelp av konvensjonelle ror, et ror akter om hver av propellene. Roret består av en fast del og en bevegelig del. Den bevegelige delen, finnen, er montert akter i den faste delen. Den faste delen utgjør dessuten støtte for propellakselen. Det hydrauliske styremaskineriet finnes i rommet lengst akter i hver av pongtongene.
Fartøyet har ingen konvensjonell stabiliseringsfinne i senterlinjen under bunnen av skrogene. I stedet skal roret bidra til kursstabiliteten.
4.3.3.2 Faktiske manøveregenskaper
Etter HSC-koden kap. 17.1 skal det utføres fullskala manøvertester på nye typer av hurtiggående fartøy for å demonstrere fartøyenes operasjonssikkerhet, såkalte Annex 8-tester. Testene skal utføres i samsvar med vedlegg 8 til HSC-koden, og resultatene av dem skal finnes i driftshåndboken.
Da MS Sleipner og MS Draupner fikk operasjonstillatelse for hurtiggående fartøy, var Annex 8-test ikke fullt ut gjennomført og dokumentert. Deler gjenstod fremdeles da fartøyet gikk ned.
Som følge av manglende manøvertester engasjerte kommisjonen MARINTEK til å gjennomføre slik testing av søsterskipet MS Draupner, for å få avdekket om fartøyene har hatt tilstrekkelige manøveregenskaper. 7 Da ulykken fant sted, fikk MS Sleipner kraftig sjø inn noe til babord aktenfra. Denne typen sjø kan på enkelte fartøyer medføre «broaching»-effekter, der fartøyet mister styreevnen.
Manøvertestene fant sted i farvannet utenfor Bergen 11. og 12. januar 2000. Det ble utført tester i så vel stille vann som i kraftig sjø, ikke så ulikt forholdene på ulykkestidspunktet.
Kommisjonen skal gjøre nærmere rede for de prøver som ble gjennomført og resultatene av dem:
Spiralprøve, for å avdekke om fartøyet er kursstabilt eller ikke. Prøven utføres i hastigheter på 35 knop og 25 knop i stille farvann. Resultatene for MS Draupners vedkommende var svært gode og viste at fartøyet var meget kursstabilt i begge hastigheter.
Sikk-sakk prøve, som også gir informasjon om kursstabilitet og hvor raskt fartøyet reagerer på rormanøvere. Prøven ble utført i stille vann med hastighetene 35 og 25 knop med henholdsvis 10 og 20 graders rorutslag/kursavvik. Prøven ga meget tilfredsstillende resultater, med svært små overgangsvinkler.
Dreiesirkelprøve, som angir fartøyets evne til å svinge, uttrykt i dreiesirkeldiameter. Prøven ble utført i hastigheter på 35 og 25 knop i stille farvann med rorutslag på 30 grader. Testen resulterte i en stor dreiesirkeldiameter sett hen til fartøyets størrelse. En hastighet på 35 knop ga en dreiesirkeldiameter på ca. 750 meter, mens en hastighet på 25 knop ga en dreiesirkeldiameter på ca. 550 meter. Av spiralprøven og sikksakk prøven gikk det frem at rorkraften ikke økte på konvensjonell måte ved rorgiring utover ca. 15 grader. Årsaken til dette kan være fartøyets arrangement akter, der enkelte strukturer/finner fra interceptoren forstyrrer vannstrømningen slik at fartøyets ror får en redusert virkning ved rorutslag utover 15–20 grader, se nedenfor i pkt. 4.3.3.3.
Stopprøve ble utført i stille farvann med en hastighet på 35 knop. Fartøyet stoppet helt opp etter 16–20 sekunder, med en tilbakelagt distanse på ca. 180 meter etter at ordre om full akterover var gitt. Stopprøver i stor sjø fra akter viste omtrent samme stopptid, med noe kortere stopplengde.
Målinger i bølger. Fartøyet gikk med sjø mer eller mindre på skrå inn aktenfra og med hastigheter mellom 25 og 35 knop. Signifikant bølgehøyde var ca. 2.1 meter, bølgeperiode 5–7 sekunder og vindhastigheten ca. 7–10 meter pr. sekund. Kapteinen ble bedt om å holde en bestemt kurs. Fartøyet viste ingen tendens til ukontrollert utskjæring, og navigatøren hadde til enhver tid full kontroll over fartøyet. Ved hjelp av roret var det ikke noe problem å holde fartøyet på angitt kurs.
Det er ikke grunn til å tro at MS Sleipners manøveregenskaper avvek fra MS Draupners. Fartøyene var praktisk talt identiske, og det er ikke påvist feil ved MS Sleipners ror- eller fremdriftsmaskineri. Testene som ble utført på MS Draupner, viste at fartøyet var retningsstabilt, og at navigatøren selv i stor sjø inn fra siden ikke hadde problemer med å holde fartøyet på rett kurs.
4.3.3.3 Stabiliseringssystem
MS Sleipner har ikke stabiliseringsfinner, verken forut eller akter. Derimot finnes en «interceptor» basert på et «ride control system». Systemet består av en hydraulisk styrt vertikal plate, plassert tverrskips i akterkant av akterspeilet, som ved hjelp av hydraulikk kan beveges opp og ned. På denne måten skapes et varierende overtrykk under pongtongen, hvilket medfører at fartøyets vertikale bevegelser i sjøgang i noen grad reduseres.
Det har i etterkant fremkommet opplysninger om at stabiliseringssystemet på MS Sleipner i en lengre periode før ulykken hadde vært ute av funksjon. Til tross for at de vertikale platene har vært låst i sin øvre posisjon, skal platen på en av sidene enkelte ganger ha glidd ned til nedre posisjon. Når bunnplaten faller ned, vil trykket som dermed oppstår under platen, kunne medføre en mindre krengning av fartøyet. Platen gir dessuten en viss motstand. Både krengingen og motstanden gir grunnlag for enkelte mindre giring-effekter, men i hver sin retning. Faktisk giring vil derfor bli ganske marginal og ikke representere noe problem for navigatøren, se for øvrig også pkt. 5.5.3.
4.3.4 Konklusjoner – propulsjon, elektrisk system og styring
Fartøyets hovedmaskineri og hjelpemaskineri er bygget opp og arrangert i samsvar med klassens og HSC-kodens regler.
Fartøyets el-system er ikke i samsvar med HSC-koden grunnet feilaktig plassering av overgangsnødkraftkilden og likeretter til tavle 1L.
HSC-koden krever at tester som skal gjøres for å bevise at fartøyet under normal operasjon og i en nødsituasjon oppfører seg tilfredsstillende i forhold til planlagt fartsområde, skal gjennomføres før fartøyet settes i drift. Så vidt kommisjonen har fått brakt på det rene, ble dette bare delvis gjort. Dette er uheldig, men testene kommisjonen har fått utført i etterkant av ulykken, viser at fartøyets manøveregenskaper ikke representerte noe sikkerhetsproblem. Selv i stor sjø aktenfra var det ikke noe problem for navigatøren å holde fartøyet på rett kurs.
4.4 Livredningsarrangement og -utrustning
Livredningsarrangementet på MS Sleipner er dimensjonert for 358 passasjerer og åtte besetningsmedlemmer, til sammen 366 personer. Fartøyet har to evakueringsplasser, en på styrbord og en på babord side akter på hoveddekket mellom tverramme 28 og 32. Det er to flåter på hver side, som begge er plassert under hoveddekket. Konsekvensene av dette er:
at samtlige passasjerer skal ned til hoveddekket akter ved en evakueringssituasjon, og
at kun én flåte på hver side kan fylles med passasjerer på en gang, fordi evakueringsplassene ikke har plass til mer enn én oppblåst flåte. Når en flåte er fylt, må neste flåte blåses opp før evakuering kan finne sted ned til denne.
I det følgende skal kommisjonen gi en nærmere redegjørelse for evakueringssystemet.
4.4.1 Evakueringssystemet
I dette avsnittet vil kommisjonen gjøre rede for hvordan passasjerene er forutsatt evakuert i henhold til evakueringsplanen. Deretter følger kommisjonens vurdering av denne planen.
4.4.1.1 Evakuering fra øvre passasjerdekk
Som nevnt må alle passasjerene på øvre dekk komme ned på hoveddekket i en evakueringssituasjon. Ned dit kan man komme på to måter, enten gjennom trappen midtskips i senterlinjen ned til entréhallen, eller gjennom døren i senterlinjen til det åpne dekket akter. Derfra kan man gå ned de åpne trappene på hver side av fartøyet.
I følge evakueringsplanen skal imidlertid samtlige passasjerer på øvre dekk, 159 personer hvis fartøyet er fullt, evakueres ned til entréhallen på hoveddekket. Dette er meddelt passasjerene gjennom brosjyren «Safety on board» og selvlysende piler under setene som peker i retning av denne trappen. Se grønne piler inntegnet i figur 4.10.

Figur 4.12 Evacuation plan
4.4.1.2 Evakuering fra hoveddekket
Fra den fremre salongen på hoveddekket skal inntil 154 passasjerer evakueres inn i entréhallen, hvor de vil møte passasjerene fra øvre dekk som kommer ned den indre trappen. Hvis ikke evakueringen styres aktivt, vil det da kunne være 313 passasjerer i entréhallen. Derfra skal alle trekke ut til evakueringsstasjonene via sidedørene.
De 45 passasjerene i den aktre salongen er forutsatt å skulle trekke ut gjennom døren akter i salongen og ut på akterdekket.
4.4.1.3 Evakueringsstasjonene
Evakueringsstasjonene, der entring til flåtene skal skje, ligger mellom tverramme 28 og 32, og er ca. 4,5 meter lang, én meter bred og er innad begrenset av siden på overbygget. Se figur 4.11.

Figur 4.13 Embarkation station
Evakueringsstasjonene ligger 1,1 meter under hoveddekkets nivå. Styrbord og babord side er identiske. Det finnes trapper ned til evakueringsstasjonene både i for- og akterkant.
I en normal evakueringssituasjon skal alle passasjerer på hoveddekket, inntil 199 passasjerer, og 26 passasjerer fra øvre dekk benytte de to flåtene på babord side. Passasjerene kommer fra setene merket med blått i figur 4.10 ovenfor. Av disse er det kun de 45 passasjerene fra aktre salong på hoveddekket som ankommer evakueringsstasjonen fra akter. De resterende 180 passasjerene vil komme fra entréhallen via utgangsdøren.
På styrbord side skal de 133 passasjerene fra setene som er merket med rødt på evakueringsplanen, ankomme evakueringsstasjonen forfra gjennom døren til entréhallen. Den aktre adkomsten til evakueringsstasjonen på styrbord side er ikke forutsatt benyttet i normalsituasjonen.
4.4.1.4 Vurdering av evakueringssystemet
Etter kommisjonens vurdering er det flere svakheter ved den valgte evakueringsløsningen på MS Sleipner.
Kommisjonen vil anta at det er lite realistisk at samtlige passasjerer vil trekke ned innertrappen til entréhallen. I en nødsituasjon, ikke minst ved brann, vil formodentlig en stor del komme til å trekke ut på det åpne dekket fremfor å trekke ned i et lukket rom. Besetningen kan vanskelig hindre dette. Det er uheldig at evakueringen ikke er lagt opp etter den atferd man kan forvente fra passasjerene.
Hvis samtlige passasjer fra øvre passasjerdekk følger anvist evakueringsvei ned innertrappen, vil trappens bredde skape problemer. Den har fri bredde innenfor rekkverket på ca. 1100 mm, hvilket etter kommisjonens oppfatning er trangt for 159 personer.
Ved en evakuering ved hjelp av den indre trappen ned fra øvre passasjerdekk, vil opp til 313 passasjerer kunne samles i entréhallen. Denne er helt lukket og har ikke vinduer eller annet utsyn utover utgangsdørene, se figur 4.11 ovenfor. Bare et fåtall av passasjerene vil derfor få overblikk over utsettingen av flåtene.
Etter kommisjonens oppfatning er entréhallen for liten til det tiltenkte formålet. En kan vanskelig se for seg hvordan det kan være plass til opp til 313 ventende passasjerer. Det er under enhver omstendighet mulighet for at mange vil få klaustrofobi når så mange samles i et såpass lite og lukket rom i en nødsituasjon.
Med unntak av 45 passasjerer fra aktre salong på hoveddekket, skal samtlige passasjerer evakueres ned i flåtene via den fremre nedgangen til evakueringsstasjonene. Etter kommisjonens oppfatning vil denne løsningen skape unødvendig forsinkelser. Kapasiteten ville bli bedre utnyttet dersom halvparten av passasjerene benyttet aktre nedgang til evakueringsstasjonene.
4.4.2 Flåtearrangementet
4.4.2.1 Flåtene
På hver side av fartøyet er det to oppblåsbare flåter av type ML Lifeguard – LG 3062. Flåtene er typegodkjent av Maritime and Coastguard Agency i Storbritannia, og er på denne bakgrunn akseptert av Sjøfartsdirektoratet for bruk på norske fartøy. Kapasiteten er 140 passasjerer pr. flåte. Flåtene er 14 meter lange, 6 meter brede og ca. 1 meter høye, eksklusive overbyggingen. Vekten er ca. 500 kilo.
HSC-koden kap. 8.10 krever flåtedekning for 110 % av det totale antall personer ombord. For MS Sleipners del innebærer det at hver flåte må kunne ta 101 personer. 8
Videre kreves det at de resterende flåtene skal ha tilstrekkelig kapasitet til å romme samtlige personer dersom én flåte tapes eller blir funksjonsudyktig. Dette kravet medfører på MS Sleipner at hver flåte må ta minimum 122 personer. 9
Dette viser at flåtene har tilstrekkelig kapasitet.
Flåtene er plassert på en nedsenket del av hoveddekket mellom tverramme 28 og 32, beskyttet av en dekksluke samt av et deksel i skutesiden, festet til resten av fartøyet med tauverk. Bunnen på fordypningen, som ligger 1,1 meter under hoveddekket, utgjør dessuten evakueringsdekket, se pkt. 4.4.1.3 ovenfor. Flåtene ligger med 20 graders helling. Se figur 4.12.

Figur 4.14 Liferaft launching mechanism
Flåtene utløses ved hjelp av vakuumpumper, enten fra to posisjoner i akterkant av broen, eller lokalt fra en stasjon plassert i CO2 -rommene i nærheten av evakueringsstasjonene. Vakuumpumpene er knyttet til manuelle utløserenheter montert på tauverket som flåtecontainerne er festet med samt på tauverket som holder de løse dekslene på plass. Når det oppnås vakuum inne i disse enhetene, blir en kniv frigjort. Denne kniven kutter tauverket, og dermed blir dekslene og containerne frigjort.
Etter HSC-koden kap. 8.6.10 skal evakueringsarrangementet ha et fri-flyt-system, som automatisk frigjør flåtene hvis fartøyet går ned. Et slikt system forutsetter normalt bruk av hydrostatiske utløserenheter, som kutter tauverket når de blir utsatt for et visst vanntrykk. 10
Selantic Industrier AS foreslo opprinnelig overfor verftet at det skulle velge standardsystem, med en kombinert elektrisk/vakuum utløsning og elektriske vinsjer. Dette systemet har to hydrostatiske utløsere og to fjernutløsere på hver av flåtene. Forslaget ble imidlertid forkastet av Austal, som ønsket et manuelt vakuumsystem. Selantic utarbeidet deretter tegninger for et slikt system. På de første reviderte tegningene var det tegnet inn hydrostatiske utløsere der slike er påkrevd. På de senere tegningene som ble innsendt fra rederiet til Sjøfartsdirektoratet for godkjennelse, var de imidlertid blitt fjernet fra tauverket som holder flåtecontainerne fast. På dette tauverket var det kun inntegnet manuelle utløserenheter, som feilaktig var omtalt som «hydrostatic release». Senere ble flåtecontainerne montert i tråd med de siste tegningene, uten hydrostatiske utløserenheter. Dette ble ikke oppdaget før etter ulykken. Sjøfartsdirektoratets godkjenning av disse tegningene er behandlet nedenfor i pkt. 4.8.2.
Tauverket som holder de løse dekslene på plass, ble imidlertid utstyrt med så vel manuelle som hydrostatiske utløserenheter. I følge Selantics servicemann var det han som fikk montert hydrostatiske utløsere på dekslene etter at han ankom verftet. Han monterte også hydrostatiske utløsere på flåtecontainerne, men skal ha blitt gjort oppmerksom fra verftet på at dette ikke var nødvendig. Ved senere remontering ble de hydrostatiske utløserne fjernet fra flåtecontainerne igjen.
Det er ikke blitt klarlagt hvorfor Selantic Industrier AS fjernet de hydrostatiske utløserenhetene fra tegningene. Imidlertid er det blitt klarlagt at vedkommende som gjorde det, var av den oppfatning at den manuelle utløseren også var godkjent som hydrostatisk utløser, og at det derfor ikke var nødvendig med separate hydrostatiske utløsere. 11
Det er på det rene at de manuelle utløserne, som kutter tauverket ved bruk av vakuumpumpene, i tillegg vil kunne fungere som hydrostatiske utløsere. Dette forutsetter imidlertid at røret fra de hydrostatiske pumpene og ned til de manuelle utløserne er intakt. Hvis dette får et brudd, vil trykket bli det samme på begge sider av membranen inne i utløserenheten, slik at kniven ikke blir frigjort. Dette er en av grunnene til at manuelle utløserenheter ikke er godkjent som hydrostatiske utløsere.
Hvilke konsekvenser manglende hydrostatiske utløsere fikk under ulykken, er behandlet i pkt. 6.6.4 nedenfor.
4.4.2.2 Utsetting av flåtene
Slik flåtene er plassert, er det ikke mulig å foreta evakueringen til begge flåtene på hver side samtidig. Det må gjennomføres en ganske omfattende forhalingsoperasjon. Dette har medført at instruksjonsmanualen for evakueringssystemet er blitt forholdsvis omfattende. Kommisjonen finner det riktig å sitere den. Da den bare forelå på engelsk, siteres den her på originalspråket:
«With reference to the Liferaft Stowage Arrangement Drawing and the Embarkation Deck Bowsing Line and Winch Arrangement Drawing the sequence for launching the rafts is as follows:
Open the Engine Room Escape Door on the aft deck, port and starboard side, to access the release pumps. (Not necessary if releasing from the wheelhouse).
Lift up the deck above the rafts. The deck is split into two pieces. Lift the aft deck plate first, then the forward deck plate.
At the release station (either the local or wheelhouse station), pump the handle for the bulwark door. This will jettison the bulwark.
At the release station (either the local or wheelhouse station), pump the handle for the forward raft to deploy.
At the release station (either the local or wheelhouse station), pump the handle for the aft raft to deploy.
Proceed down to the embarkation deck and jettison the liferaft cradles.
Fold down the steps located at the forward and aft end of the embarkation deck.
Raise the bowsing winch pedestal located in the centre of the embarkation deck into position and secure with the locking pin.
Take the number one line off the cleat and onto the forward winch. Winch up on this line. This will tow the forward raft forward to the end of its run. Note: the raft is not inflated at this stage but moved forward so that the aft can be launched, inflated and bowsed.
Take the number one off the winch and lock off the cleat.
Take the number two line off the cleat and place it on the forward winch.
Pull the inflation line on the raft to inflate.
Start to winch up the number two line. Whinch up until the raft is tight alongside the ship.
Take the number four line off the cleat and place it on the aft winch. Whinch up until the aft end of the raft is tight alongside the ship.
Take the number two line off the for’d winch and lock off on the cleat provided. Take the number four line off the aft winch and lock off on the cleat provided.
Ensure bowsing lines are clear of the step off area.
Fit Mini escape slides if required. See attached instructions on Mini slide deployment.
Commence embarking passengers into the raft.
Once the aft raft is full, the raft is released by cutting the bowsing lines.
Take the number three line off the cleat and place on the aft winch.
Pull the inflation line on the raft to inflate.
Winch the forward raft aft. Bowse the raft in tight to the ship and adjust the fore and aft position if necessary by taking the number one line off the cleat and onto the winch.
Commence embarking passengers into the raft.
Once the raft is full, the raft is released by cutting the bowsing lines.
NOTE: If the vessel has sustained damage to the forward compartments ensure that the height of the embarkation deck is below 1500 mm above the waterline. If the height of the embarkation deck is higher than 1500 mm the mini marine slides will need to be used to disembark passengers into the rafts. These slides are located at the embarkation deck in the locker marked and will need to be inserted between step 16 and step 17 of the above evacuation procedure.»
Et utkast til instruksjonsmanualen ble skrevet av verftet og forelagt Selantic, som bare hadde to mindre anmerkninger til den. Det skal imidlertid ha blitt gjort endringer i manualen etter at den ble forelagt Selantic.
Kommisjonen vil påpeke at pkt. 4 og 5 ikke stemmer overens med realitetene. Ut fra disse kan det se ut som om aktre og fremre flåte løses ut med forskjellige pumper. Dette er ikke tilfellet – de løses ut med en og samme pumpe.
4.4.2.3 Evakueringstest
Etter HSC-kodens kap. 4.8 skal evakuering kunne skje i kontrollerte former innenfor den tid som fremkommer etter følgende regnestykke: Den konstruksjonsmessige brannvernperioden reduseres med syv minutter for oppdagelse og slukking. Evakuering i kontrollerte former skal kunne skje innenfor en tredjedel av den tiden man da sitter igjen med. For MS Sleipner er brannvernperioden 60 minutter. Dette innebærer at evakueringstiden for MS Sleipner skal være (60 min. – 7 min.) = 53 min./3 = 17,7 minutter.
At evakuering innen denne tiden er mulig, skal i følge HSC-koden kap. 4.8.3 demonstreres ved en evakueringstest, se pkt. 3.3.6.4 ovenfor. Evakueringstesten forutsetter bruk av utgangene og redningsfarkostene på en side av fartøyet med evakuering av halve passasjerantallet.
Evakueringstesten på MS Sleipner ble gjennomført på verftet i fint sommervær. Temperaturen var + 35 grader celsius, og det var ingen vind. Evakueringen skjedde fra babord redningsstasjon, med to tilhørende flåter. Med 188 verftsarbeidere som passasjerer og fire «besetningsmedlemmer», hvorav to på redningsstasjonen det ble evakuert fra, ble fartøyet evakuert på 10 minutter og 15 sekunder. Det tok ca. fire minutter å få passasjerene ned i de to flåtene. Resten av tiden gikk med til nødvendige forberedelser av flåtene.
Vedkommende som betjente redningsstasjonen kom fra Selantic Industrier AS, som hadde levert flåtene. Han hadde på seg korte bukser og kortarmet skjorte. Dette er i strid med Sjøfartsdirektoratets retningslinjer for gjennomføring av evakueringstester, som krever at operatøren benytter redningsdrakt når slik drakt er påkrevd for besetningen om bord.
Testen ble godkjent av Sjøfartsdirektoratet, som hadde en representant til stede, se pkt. 4.8.2 nedenfor.
4.4.2.4 Hardværstest
Sjøfartsdirektoratet krever som påpekt i pkt. 3.3.6.4 ovenfor at evakueringssystemet på hurtigbåter må gjennomgå en hardværstest.
Av årsaker kommisjonen har redegjort for i punkt 4.8.2 nedenfor, ble det ikke gjennomført noen hardværstest med MS Sleipner og/eller MS Draupner før fartøyene ble satt i rute.
4.4.2.5 Vurdering – flåtearrangementet
Som påvist ovenfor er tidskravet for evakuering uavhengig av fartøyets størrelse – det er det anvendte brannsikringsmaterialet som avgjør lengden. Dette innebærer at testen sjelden vil medføre noe problem for mindre fartøyer, herunder fartøyer av MS Sleipners størrelse.
Etter HSC-koden skal man ved bedømmelse av demonstrasjonen ta tilbørlig hensyn til problemer som oppstår som følge av panikksituasjoner. Panikk kan lett oppstå i en nødsituasjon der rask evakuering er nødvendig. På denne bakgrunn skal bedømmelsen inkludere godkjenning av evakueringsveiene, evakueringsplassen samt utsettingen av flåtene etter den svært kompliserte instruksjonsmanualen.
Etter kommisjonens oppfatning er det ikke klart om disse forholdene er blitt tilstrekkelig vurdert. Kommisjonen har påpekt at det vil bli meget trangt inne i entréhallen ved evakuering på MS Sleipner. Når kun halvparten av maksimalt passasjerantall er om bord under evakueringstesten, blir ikke dette prøvet.
Ved en reell evakueringssituasjon i Norge vil passasjerene måtte ha på seg yttertøy, og mannskapet ha på seg redningsdrakt. Dette ble ikke prøvet under den foretatte evakueringstesten.
Sjøfartsdirektoratets instruks om evakueringsdemonstrasjon for hurtiggående fartøy av 27. mai 1997 krever at besetningen har på seg redningsdrakt under demonstrasjonen. Dette punktet ble ikke overholdt under demonstrasjonen i Australia.
Det er uheldig at instruksjonsmanualen for utsetting av flåtene ikke er i samsvar med realitetene.
4.4.3 Evakuering ved skadet fartøy
4.4.3.1 Faktisk beskrivelse
Testene som nevnt ovenfor må, naturlig nok, gjennomføres med et uskadet fartøy. Det må imidlertid også gjennomføres en vurdering av om evakuering vil være mulig for de skadesituasjoner fartøyet skal tåle etter HSC-koden. Med skadelengde på 4,2 meter, jf. ovenfor i pkt. 4.2.4, skal inntil to av rommene i hver av pongtongene kunne fylles med vann.
Med rom 5 og 6 i en av pongtongene fylt med vann, vil fartøyets krengning medføre at endelig vannlinje ved midten av evakueringsstasjonen, ved tverramme 30, vil komme ca. 0,3 meter under hoveddekket. Se figur 4.13.

Figur 4.15 Two-compartment damage. Single hull damage condition 2.
Dette innebærer at fordypningen på den laveste siden blir stående under vann, og de to lukene over den må legges på. Hoveddekket vil da måtte fungere som evakueringsdekk. På den andre siden må passasjerene benytte «mini slides» for å komme ned i flåtene.
4.4.3.2 Vurdering – evakuering ved skadet fartøy
Situasjonen som vises i figur 4.13 er situasjonen i stille farvann. I skadetilfellet nevnt ovenfor, vil det etter kommisjonens oppfatning kunne oppstå flere vanskeligheter:
Det er en risiko for at det allerede ved ganske små bølger vil oppstå floker på de fire linene i det kompliserte utsettingsarrangementet, og at flåteutsetting derfor blir umulig.
Selv ganske små bølger kommer til å slå opp mot det trange evakueringsdekket. Bredden på ca. én meter innebærer at bølgene vil kunne slå opp mot dekkhussiden, og kan presse passasjerene mot denne eller dra vedkommende ut i sjøen.
Flåten er ved evakueringsstart tom og lett. Den store gulvflaten på flåten på ca. 14 x 6 meter vil kunne medføre at flåten løftes opp på bølgetopper i utakt med fartøyets bevegelser. Fartøyet vil være tungt som følge av vanninntrengningen. Entring av flåten i denne situasjonen vil bli vanskelig og kan være direkte farlig.
Når store bølger slår inn mot siden, kommer oversiden av flåten nær det øvre dekket, som dekker over evakueringsstasjonen. Passasjerer kan risikere å komme i klem.
Etter kommisjonens oppfatning ville det være mulig å konstruere et livredningsarrangement på MS Sleipner uten disse manglene. Følgende løsning kan skisseres som eksempel på en løsning som ville ha gitt tørrskodd evakuering også i dårlig vær og røff sjø:
Flåtene kunne ha vært plassert på værdekket, med en flåte foran og en flåte akter på hver av sidene.
Evakuering kunne ha funnet sted fra det øvre passasjerdekket med slides ned i flåtene.
Med et slikt arrangement blir flåteutsettingen enklere. Passasjerene kan tørrskodd komme ned i hver av flåtene selv i dårlig vær, selv om flåtene beveger seg opp og ned i sjøgangen.
4.4.4 Personlig sikkerhetsutrustning
4.4.4.1 Redningsvester
Etter HSC-koden skal det finnes redningsvester til alle om bord på fartøyet. På MS Sleipner er disse plassert under hvert av stolsetene.
Dessuten skal det finnes ytterligere redningsvester i antall tilsvarende 5 % av det totale passasjerantallet, som skal plasseres i tilslutning til evakueringsdekk eller evakueringsstasjon. Redningsvester i barnestørrelse skal finnes for 10 % av passasjerantallet. På MS Sleipner er ekstravester og barnevester plassert på hoveddekket ved siden av trappen opp til øvre passasjerdekk. Denne plasseringen er i samsvar med HSC-koden.
Redningsvestene er av type Artica A (voksenvest) og Artica B (barnevest). De er produsert av Canepa & Campi i Italia. Godkjennelsesprosessen av disse redegjør kommisjonen nærmere for i punkt 4.8.6 nedenfor.
4.4.4.2 Redningsdrakter for besetningen
MS Sleipner er utstyrt med typegodkjente redningsdrakter til besetningen, i alt åtte stykker. Disse er plassert i oppholdsrommet for besetningen på øvre passasjerdekk. Draktene er av type Helly-Hansen E-307. Drakten dekker hele kroppen med unntak for ansiktet, og er utstyrt med fastlimte hansker. Hanskene har bare gripetak for to fingere – tommel og pekefinger. Drakten fantes bare i én størrelse om bord som var ment å passe alle. Den er for øvrig ikke konstruert spesielt med sikte på arbeid i nødsituasjoner.
Drakten er i ettertid blitt prøvet av kommisjonsmedlemmer, med den erfaring at de fastsveisede hanskene med bare to frigjorte fingre gjorde det svært vanskelig å arbeide med dem. Kommisjonen kan vanskelig se for seg hvordan det skulle være mulig å gjennomføre den omfattende flåteutsettingsprosessen iført denne drakten.
4.4.5 Konklusjoner – livredningsarrangement og - utrustning
Den grunnleggende filosofien for fartøyer bygget i samsvar med HSC-koden er at passasjerene skal kunne evakueres tørrskodde. Etter kommisjonens oppfatning er det ikke sikkert at dette ville ha latt seg gjøre på MS Sleipner, særlig dersom værforholdene ikke var optimale.
Kommisjonen vil i denne sammenheng påpeke:
Midten av evakueringsplassen etter en tenkt skade vil på den laveste siden komme til å ligge bare 30 cm over vannlinjen. Med sjøgang vil dette gjøre evakuering av passasjerene vanskelig.
Utsettingen av flåter skal skje fra samme sted. Etter kommisjonens oppfatning er det ikke sikkert om dette lar seg gjøre på den siden av fartøyet som ligger lavest.
Utsettingen av flåter med en aktivitetsliste på 24 punkter ville være svært vanskelig i kombinasjon med det ovenstående.
På det meste vil det kunne være mer enn 300 passasjerer samlet i entréhallen, som er sluttet og mangler vinduer. Risikoen for panikk vil da være stor.
Redningsdrakten var ikke funksjonell. Kommisjonen kan ikke se at den tiltenkte 24 punkts prosedyren for utløsning av flåtene ville ha vært mulig å gjennomføre med drakt på.
4.5 Navigasjons- og kommunikasjonsutrustning
4.5.1 Plassering av kapteinens og overstyrmannens utrustning
Broen på MS Sleipner er bygget opp med et cockpitarrangement for kapteinen og hans co-pilot, overstyrmannen, med kapteinen plassert på styrbord side og overstyrmannen på babord side. Se figur 4.8. Både kapteinen og overstyrmannen har i sin styrbord armstøtte et panel med styrehjul og tilhørende kontrollswitch.
Mellom kapteinen og overstyrmannen finnes det et horisontalt midtkonsoll, inndelt i tre seksjoner. Begge navigatørene har tilgang til denne konsollen.
I den første seksjonen finnes, regnet forfra: VHF-transceiver, panel for styring, elektronisk sjøkart, panel for vindusvisker, samtlige paneler for motorstyring (start, stopp og pådrag), kontrollpanel for autopilot, kontrollpanel for ror, rulleball for kartsystemet samt hovedstasjon for intercom- og PA-anlegg.
I den andre seksjonen finnes gyrokompassmonitor og -kontrollenhet, kontrollpanel for vindusviskere, backup-enhet for manuell rorkontroll med start/stopp og alarmfunksjoner.
I den tredje seksjonen (lengst akter) finnes CO2 -kontrollpanel, mobiltelefon og «fire detection»-kontrollpanel.
Foran midtkonsollen i senterlinjen finnes elektronisk sjøkart med dGPS (Differensiert Global Positioning System). Displayet er en LCD-skjerm som er noe nedsenket i forhold til den omkringliggende utrustningen. En LCD-skjerm kommer best til sin rett når iakttakeren sitter mer eller mindre rett foran den. Både kapteinen og overstyrmannen iakttar derimot skjermen i en vinkel som nærmer seg 45 grader.
Ved inspeksjon på søsterfartøyet MS Draupner 10. desember 1999 konstaterte kommisjonen at skjermen her var vanskelig å lese og uskarp. I mørket blir dette problemet større, da skjermen må blendes for ikke å ødelegge nattsynet til navigatørene. Kartsystemet var dessuten svært vanskelig å operere. Det var følgelig mer eller mindre umulig å operere kartsystemet fra en normal sittestilling i kapteinens eller overstyrmannens stol.
Ved ankomst havn kan fire ulike bilder fra overvåkningskameraer legges inn på kartsystemets monitor.
Over det elektroniske sjøkartet finnes kontrollpanel med girhastighetsinformasjon, gyro repeater, mobiltelefon og instrumentdimmere.
Styrbord for det elektroniske sjøkartet finnes kapteinens kontrollpanel med informasjon om propellerpitch, motorhastighet, rorvinkel og fartøyets trim. Her finnes også kapteinens radar (10 cm). Radaren stilles inn ved hjelp av en rulleball som finnes på kapteinens babord armstøtte. Ytterligere til styrbord finnes CCTV-monitor og dGPS-mottaker.
Babord for det elektroniske sjøkartet finnes overstyrmannens kontrollpanel, som inneholder tilsvarende informasjon om propellerpitch, motorhastighet og rorvinkel samt i tillegg fartslogg og distansedisplay. Noe til babord fremfor overstyrmannen finnes hans radar (3 cm). Denne radaren kontrolleres på samme måte som kapteinens – ved hjelp av rulleball på venstre armstøtte. Ytterligere til babord finnes CCTV-monitor.
4.5.2 Navigasjonsutrustning
MS Sleipner har følgende navigasjonsutrustning om bord:
To radarer av type Kelvin Hughes, Nucleus 5000. Kapteinens radar opererer på S-båndene (10 cm), antennestørrelse 3,6 meter, rotasjonshastighet 28 rotasjoner pr. minutt. Overstyrmannens radar opererer på X-båndene (3 cm), antennestørrelse 1,8 meter, rotasjonshastighet 40 rotasjoner pr. minutt. Hver av de tilknyttede radarskjermene viser i utgangspunktet eget radarbilde (master), men kan også benyttes til det andre radarbildet.
dGPS-mottaker av type Leica MX 412 Professional Navigator. Enheten består av en 12 kanals GPS-mottaker som på ulykkestiden ga en nøyaktighet på ca. 100 meter. I tillegg har mottakeren en differensiell enhet som gir en nøyaktighet ned til 10 meter.
Navtex Receiver av type FURNO NX 500.
Gyrokompass av type C-PLATH NAVIGAT X MOD 10.
Magnetkompass av type C-PLATH 260.
Ekkolodd av type SKIPPER ED 162.
Elektromagnetisk logg av type BEN ANTHENA. Loggen sender ut et signal fra en enhet i bunnen av fartøyet. Farten måles ved hjelp av tidsmåling fra utsendelse til mottak av signal.
Elektronisk sjøkart (ECS) av type Simrad ES 60. Om dette systemet heter det i driftshåndbok for MS Sleipner pkt. 416.01: «Presenterer sjøkart over det aktuelle farvannet på en dataskjerm. Systemet inneholder satellittnavigasjon som fortløpende beregner fartøyets posisjon, kurs og fart. Fartøyet vises som et fartøysymbol som beveger seg i kartet i henhold til den faktiske seilas. Posisjonen er nøyaktig så lenge DGPS er inne. Når denne faller ut, kommer GPS eller DR inn. Når GPS er inne kan poss. være 90–100 meter ute av pass. DR er bestikkregning. Det blir varslet når DGPS faller ut.» Systemet har en rekke andre muligheter, blant annet mulighet for å legge inn kurstoleransealarm, som melder fra hvis avviket mellom kalkulert og beholdt kurs blir for stor.
Radarene og det elektroniske sjøkartet får 230V vekselstrøm fra tavle L på broen og vil således få strøm så lenge en av hovedgeneratorene fungerer, se pkt. 4.3.2.2 ovenfor.
Gyrokompasset, den elektromagnetiske loggen, dGPS og ekkoloddet får 24V likestrøm fra tavle 1L på broen og vil således få strøm så lenge nødtavle K eller overgangsnødkraftkilden fungerer, se pkt. 4.3.2.2 ovenfor.
Magnetkompasset trenger ikke strøm for å fungere.
4.5.3 Intern kommunikasjonsutrustning
MS Sleipner er utstyrt med internkommunikasjonssystem levert av Jørn B. Knutsen. Systemet ivaretar flere forskjellige funksjoner:
høyttaleranlegg (PA-anlegg) for annonsering av meldinger til passasjerene fra mikrofoner plassert i billettkiosken på nedre passasjerdekk og på broen,
Kommandoanlegg for kommunikasjon mellom bro og fortøyningspostene ved hjelp av toveis høyttalere/mikrofoner,
Intercom-/telefon-anlegg for kommunikasjon besetningen i mellom og
underholdningssystem ved distribusjon av lyd- og videoprogrammer til passasjerene.
Det er montert høyttalere på i alt 13 forskjellige steder på fartøyet, men broen er ikke utstyrt med høyttaler. Navigatørene vil derfor ikke høre sin egen melding.
Sentralenheten står plassert i billettkiosken i entréhallen på nedre passasjerdekk. PA-anlegget og kommandoanlegget består av atskilte enheter.
Internkommunikasjonssystemet forsynes med 220V vekselstrøm fra nødtavle K samt alternativt 24 V likestrøm fra tavle 1L. Så lenge en av disse gir strøm, skal anlegget derfor i prinsippet fungere.
4.5.4 Ekstern kommunikasjonsutrustning
For ekstern kommunikasjon er MS Sleipner utstyrt med følgende:
To stasjonære VHFer, en av typen SPERRY COMPACT RT 2047, og en av typen SPERRY COMPACT DSC RM 2042. Den førstnevnte er en ordinær VHF, den sistnevnte av typen «Digital Self Call»,
Fire VHF-håndsett av type ICOM IC M 10E.
To mobiltelefoner, en NMT-telefon plassert foran brokonsollen forut, og en GSM-telefon plassert ved datamaskinen i akterkant av styrehuset. Den sistnevnte brukes for sending og mottak av e-post.
De stasjonære VHFene får strøm enten via likeretter fra nødtavle K eller fra egen batteribank aktenfor styrehuset.
Mobiltelefonene har samme strømtilførsel som gyrokompass mv., se pkt. 4.3.2.2 ovenfor.
De fire håndholdte VHFene står i ladeapparater og fungerer i oppladet tilstand uavhengig av strømtilførselen om bord.
4.5.5 Konklusjoner – navigasjons- og kommunikasjonsutrustning
Som påpekt i pkt. 3.3.5 ovenfor, krever HSC-koden kap. 15.4.4 og 15.5.3 at instrumenter skal kunne betjenes fra vanlig arbeidsstilling og at de skal være lette å avlese under alle operasjonsforhold.
Etter besøk på søsterfartøyet MS Draupner 10. desember 1999 kunne kommisjonen konstatere at skjermen på det elektroniske sjøkaret (ECS) var utydelig og vanskelig å lese i dagslys og dessuten vanskelig å lese i mørket uten å bli blendet. I tillegg var menyen, som er nødvendig for å operere sjøkartet, ikke lesbar fra navigatørenes arbeidsplasser.
Kommisjonen legger til grunn at det samme var tilfellet på MS Sleipner. Etter hva navigatørene har forklart, var et av disse forhold – vanskeligheter med å lese skjermen i mørket – medvirkende til at det elektroniske sjøkartet ikke var i bruk ulykkeskvelden. 12 I dag er det intet krav om at norske hurtiggående fartøy skal ha elektronisk sjøkart, men om et slikt er arrangert på broen med en sentral posisjon, må minimumskravene til plassering og funksjonalitet være oppfylt.
Ut over dette forholdet, synes broløsningen, navigasjonsutrustningen og kommunikasjonsutrustningen etter kommisjonens oppfatning å tilfredsstille kravene i HSC-koden.
Selv om broløsningen synes å være i samsvar med HSC-koden, har man ikke fullt ut utnyttet all den teknologien som var tilgjengelig da fartøyet ble bygd i 1998–99. Kommisjonen viser her til anbefalingene i pkt. 12.5 nedenfor.
4.6 Håndbøkene
4.6.1 Beskrivelse av håndbøkene
I henhold til HSC-koden kap. 18 skal fartøyet være utstyrt med flere fartøyspesifikke håndbøker for at fartøyet skal kunne drives og vedlikeholdes på en sikker måte, jf. pkt. 3.4 ovenfor og 8.2.2.2 nedenfor. Disse vil også inngå som en del av ISM-systemet om bord, se pkt. 3.5 ovenfor. De sentrale håndbøkene etter HSC-koden er:
Rutehåndbok,
Operasjonshåndbok for fartøyet,
Opplæringshåndbok,
Vedlikeholdshåndbok og
Serviceplan.
I HSD har man til dels valgt å slå disse håndbøkene sammen til en driftshåndbok, som helt eller delvis utgjør operasjonshåndbok for fartøy, rutehåndbok og vedlikeholdshåndbok. Driftshåndboken er dessuten en del av ISM-systemet, se pkt. 8.2.2.2 nedenfor.
Driftshåndboken har følgende kapitler:
Generelt
Rederiets sikkerhets- og miljøpolitikk
Ansvar og myndighet
Sikkerhetsansvarlige personer i rederiet
Kapteinens ansvar og myndighet
Personell
Fartøysdata, system og utstyr om bord
Operasjonsplaner
Beredskapsplaner
Vedlikehold og innkjøp
Dokumentasjon
Rapportering
Verifisering, gjennomgang og evaluering
Sertifisering og kontroll
Utgaven kommisjonen er blitt forelagt er av 19. november 1999, altså én uke før ulykken, og er på i alt 163 sider. Utgaven er stort sett komplett, men enkelte punkter mangler. For det første mangler pkt. 7.3.14 om manøvreringsdata. Her skulle fartøyets svinge-, stoppe- og bakkeegenskaper og fartskurver ha vært beskrevet. Manglene har sammenheng med at en såkalt Annex 8-test, hvor slike egenskaper avdekkes, ikke var fullt ut gjennomført. Denne skulle foretas i sammenheng med hardværstesten. For det annet mangler pkt. 7.3.15 om prøveturdata. Kommisjonen vil dessuten påpeke at driftshåndboken ikke omhandlet «ride control»-systemet.
I følge HSC-koden pkt. 18.2.2.5 skal rutehåndboken ha arrangementer for innhenting av værinformasjon. I følge pkt. 18.2.2.7 skal den også fastsette person med ansvar for å avgjøre om en reise skal utsettes eller innstilles. Det eneste man finner om dette er drifthåndbokens pkt. 9.1.10 «Prosedyre for innstilling av rute over Sletta.» Det heter her at nordgående fartøy skal bedømme været ved avgang Stavanger og ta kontakt med Haugesund Lufthavn, Karmøy (med angitt telefonnummer) for å be om vindstyrke og retning – «Etter at bestemmelse er tatt om ikke å passere SLETTA gjøres følgende: … – Sørgående fartøy varsles …». Deretter følger en prosedyre med bestilling av busser osv.
I egenskap av rutehåndbok er driftshåndboken supplert med egne permer med farvannsbeskrivelser. Disse fantes om bord.
I egenskap av opplæringshåndbok er driftshåndboken ment å være supplert med en egen opplæringshåndbok for redningssutstyr. Da ulykken fant sted, var opplæringshåndboken ifølge rederiet fortsatt under bearbeidelse. Så vidt kommisjonen har fått brakt på det rene, fantes det heller ingen foreløpig utgave om bord. Manualer for de enkelte redningsutstyrskomponentene skal imidlertid ha vært om bord.
Serviceplan og øvelsesplan er inkorporert i et databasert vedlikeholdsprogram – SAMA – som fortløpende forteller brukere hvilket vedlikehold som må gjennomføres ved å gi vedlikeholdsordrer.
4.6.2 Konklusjoner og vurderinger – håndbøkene
Gjennomgangen ovenfor viser at håndbøkene som er påkrevd etter HSC-koden, ikke var fullstendige. Kommisjonen vil her særskilt påpeke at opplæringshåndbok for sikkerhetsutstyr manglet. Innføring i denne opplæringshåndboken var ment å være en del av utsjekken for besetningen, en utsjekk som ikke ble benyttet da MS Sleipner ble satt i rute, jf. punkt 4.7.4. MS Sleipner skulle ikke ha vært satt i drift uten at opplæringshåndboken var sluttført, jf. punkt 4.8.7.
Punktet om manøvreringsdata manglet i driftshåndboken. Uten disse ville ikke navigatørene med sikkerhet kunne vite hvilke egenskaper fartøyet har i fart.
Driftshåndbokens bestemmelser om prosedyrer for innstilling av ruter og innhenting av værinformasjon er etter kommisjonens oppfatning ikke tilstrekkelig klare. De oppfyller etter kommisjonens oppfatning ikke HSC-kodens krav, se pkt. 8.2.3.2.
Ut over disse forhold synes håndbøkene stort sett å være i samsvar med de kravene HSC-koden oppstiller.
4.7 Besetningen
4.7.1 Innledning
De generelle reglene om krav til bemanningen på hurtiggående fartøy er behandlet ovenfor i pkt 3.6. I dette avsnittet skal kommisjonen ta for seg de konkrete krav som ble stilt til bemanningen av MS Sleipner, samt redegjøre for rederiets opplærings- og øvingsrutiner og besetningens kvalifikasjoner.
4.7.2 Bemanningsoppgavens krav
Med hjemmel i forskrift 17. mars 1987 nr. 175 om bemanning av norske skip § 4 fastsetter Sjøfartsdirektoratet krav om en sikkerhetsbemanning. Kravet til sikkerhetsbemanningens kvalifikasjoner og omfang vil fremgå av bemanningsoppgaven, jf. forskriften § 5.
I følge bemanningsoppgaven for MS Sleipner av 4. august 1999 skulle fartøyets sikkerhetsbemanning bestå av skipsfører, overstyrmann, maskinsjef, matros- og motormann (en person) samt to restaurasjonsassistenter. Hvis færre enn 250 passasjerer var om bord, var det tilstrekkelig med én restaurasjonsassistent.
Kommisjonen bemerker at MS Sleipners forlis ikke gir grunnlag for å drøfte bemanningsstørrelsen. Hendelsesforløpet preges av besetningens opplæring og øvelse, ikke av dens størrelse.
Da bemanningsoppgaven for MS Sleipner ble utferdiget, var ikke Sjøfartsdirektoratets kontrollbase oppdatert til å omfatte alle sertifikatstyper etter den nye forskriften 29. april 1998 nr. 398 om kvalifikasjonskrav, utstedelse av sertifikater og om sertifikatrettigheter for personell på norske skip (kvalifikasjonsforskriften). Sertifikatkravene ble derfor angitt i henhold til tidligere lov og forskrifter om sertifikatkrav. Etter kvalifikasjonsforskriften § 31 nr. 2 vil sertifikater utstedt etter eldre lov og forskrifter være gyldige frem til 1. februar 2002.
Skipsføreren skulle etter bemanningsoppgaven enten ha dekksoffisersertifikat klasse D3 etter forskrift 22. august 1989, skippersertifikat etter forskrift 11. desember 1981 eller styrmannssertifikat av 1. klasse etter lov 10. oktober 1958. Dekksoffisersertifikat klasse D3 og skippersertifikat ga rett til å føre skip opp til 3 000 bruttotonn i ubegrenset fart, se kvalifikasjonsforskriften § 31 nr. 1. Sertifikatene tilsvarer det nåværende dekksoffisersertifikat klasse 3A etter kvalifikasjonsforskriften § 18 nr. 7. Styrmannssertifikat av 1. klasse ga rett til å føre fartøy opp til 3000 bruttotonn i ubegrenset fart, se kvalifikasjonsforskriften § 31 nr. 1.
Overstyrmannen skulle etter bemanningsoppgaven enten ha dekksoffisersertifikat klasse D4 etter forskrift 22. august 1989, styrmannsertifikat etter forskrift 11. desember 1981 eller styrmannssertifikat av klasse 2 etter lov 10. oktober 1958. Dekksoffisersertifikat klasse D4 og styrmannssertifikat ga rett til å ta tjeneste som styrmann på fartøy opp til 3 000 bruttotonn i Nord- og Østersjøfart, se kvalifikasjonsforskriften § 31 nr. 1. Styrmannssertifikat av klasse 2 ga rett til å ta tjeneste som styrmann på fartøy opp til 3 000 bruttotonn i Nord- og Østersjøfart, se kvalifikasjonsforskriften § 31 nr. 1.
Maskinsjefen skulle etter bemanningsoppgaven enten ha maskinoffisersertifikat klasse 3 etter forskrift 22. august 1989, sjøingeniørsertifikat II etter forskrift 11. desember 1981 eller maskinistsertifikat av 1. klasse etter lov 2. juni 1960. Alle disse sertifikatene ga rett til å ta tjeneste som maskinsjef på fartøy opp til 3 000 bruttotonn, og tilsvarer det nåværende maskinoffisersertifikat klasse 3A etter kvalifikasjonsforskriften.
Restaurasjonspersonalet og matros- og motormann er stillinger uten krav til sertifikat. Kvalifikasjonsforskriften § 14 setter imidlertid krav til tre års fartstid for matros og motormannen. Ved skolegang kan kravet til fartstid bli kortere. For restaurasjonspersonalet oppstilles ingen særlige krav.
Bemanningsoppgaven fremholdt at alle underordnede besetningsmedlemmer skulle oppfylle kravet til sikkerhetsopplæring etter kvalifikasjonsforskriften. Hvilke krav forskriften oppstiller, er behandlet ovenfor i pkt 3.6.3.3
De særlige krav til opplæring av hurtigbåtpersonell som er nedfelt i kvalifikasjonsforskriften §§ 27 og 28, er behandlet ovenfor i pkt. 3.6.3.4.
4.7.3 Besetningens formelle kvalifikasjoner
Kaptein Sverre Hagland ble først utdannet skipsbygger/platearbeider hos Brødrene Lothe i Haugesund. Etter å ha kjørt tankbil i en periode, begynte han i utenriks fart i 1972–1973.
Hagland har kystskippersertifikat av 1. klasse fra 1972, dekksoffisersertifikat D3 fra 1981 og dekksoffisersertifikat D1 fra 1991. Han har dessuten GOC-sertifikat (generell radiooperatør-sertifikat), og han gjennomførte fire dagers hurtigbåtførerkurs for erfarne hurtigbåtnavigatører i 1993.
Fra 9. august 1982 har Hagland arbeidet i HSD. I 1982–1983 seilte han som styrmann på fergen MS Hordaland på strekningen Halhjem – Sandvikvåg. Han ble skipsføreravløser på MS Os i 1983, men seilte mest som styrmann på MS Hordaland. I 1988 ble han styrmann på et enskroget hurtiggående fartøy – MS Vøringen. Siden har Hagland seilt på ulike hurtiggående fartøy i HSD. Fra 4. januar 1992 ble han ansatt som skipsfører på den forrige MS Draupner – nåværende MS Tyrving. Med unntak for kortere perioder på andre fartøyer, førte han MS Tyrving til han ble ansatt som kaptein på nye MS Draupner, da den begynte i rute i august 1999. Ulykkeskvelden førte han MS Sleipner grunnet intern omfordeling.
Overstyrmann Olav Skjetne har dekksoffisersertifikat klasse 2 fra 1996, hurtigbåtførerkurs for uerfarne hurtigbåtnavigatører fra 1994 samt sikkerhetskurs for arbeid i Nordsjøen og sikkerhetskurs for ledende befal på fartøy fra 1984. Skjetne har fartstid i HSD fra 1993, hvor han har seilt som overstyrmann og i en kortere periode som kaptein. I hele denne perioden har han seilt hurtigbåter. Han ble ansatt som overstyrmann på MS Sleipner da den begynte i rute i august 1999.
Maskinsjef Leiv Sørbø har maskinsjefsertifikat av klasse 1 fra 1974. Sørbø har fartstid på Flaggruten siden 1974, med unntak for perioden 1986–91, hvor han seilte i kystfart på et lastefartøy.
Matros og motormann Leif Larsen begynte i Flaggruten i 1964. Han hadde antakelig brannkurs, men rederiet har ikke nærmere opplysninger om dette. Larsen omkom under forliset.
Restaurasjonsassistent Kjellaug Skjerve begynte i rederiet i januar 1999. Da ulykken fant sted, hadde hun ikke fått sikkerhetsopplæring fra rederiet. I 1998 gjennomførte hun imidlertid på eget initiativ kurs i grunnleggende sikkerhets- og beredskapsopplæring hos Nutec AS i Stavanger. Dette er et kurs for offshorepersonell – det såkalte OLF-kurset. Samme år gjennomgikk hun dessuten «Avansert førstehjelpskurs for offshorepersonell» hos Medicom AS i Sandnes.
Restaurasjonsassistent Reidun Flatekval begynte i rederiet i 1988. I 1995 gjennomgikk hun «Beredskapskurs for cateringpersonell» i regi av rederiet. Fordi hun hadde mer enn et års fartstid da kvalifikasjonsforskriften trådte i kraft, kunne hun for øvrig inngå i sikkerhetsbemanningen uten å ha gjennomført særskilt opplæring etter kvalifikasjonsforskriften § 9.
Restaurasjonsassistent Mette Jensen begynte i rederiet 3. august 1999. Da ulykken fant sted hadde hun ikke fått noen form for organisert sikkerhetsopplæring.
Restaurasjonsassistent Ruth Marit Haukøy begynte i rederiet 14. september 1999. Hun mottok ikke noen form for organisert sikkerhetsopplæring. Haukøy omkom under forliset.
Barnepasser Tone Torsvik begynte i rederiet 24. september 1999. Hun mottok ikke noen form for organisert sikkerhetsopplæring.
4.7.4 Rederifastsatte opplærings- og øvingskrav
Det følger av kvalifikasjonsforskriften § 27 at rederier som skal drive trafikk med hurtiggående fartøy skal utarbeide en egen opplæringsplan for førere, styrmenn og mannskap på slike fartøy. Hvilke krav forskriften oppstiller, er behandlet ovenfor i pkt. 3.6.3.4.
HSDs opplæringsplan for besetning på hurtiggående fartøy er nedfelt i driftshåndbok for MS Sleipner pkt 6.5. Her heter det:
«I tillegg til generelle kvalifikasjoner skal personellet om bord opplæres før vedkommende får gå selvstendige vakter.
Opplæringen skal bestå av en gjennomgang av egen utsjekkliste som refererer til driftssystem manualen og opplæringshåndbok for redningsutstyr. Ved fullført opplæring blir det utstedt kvalfikasjonsbevis.
Tilsyn og utførelse av opplæring foretas av kaptein og maskinsjef. Disse skal kvittere for at det nye besetningsmedlemmet er tilstrekkelig opplært til å kunne utføre tjenesten om bord på en tilstrekkelig måte.
Kapteinen skal attestere for at opplæring er fullført tilfredsstillende uansett personellkategori.
Retrening skal foretas annet hvert år etter samme plan.
Nye navigatører i selskapet skal utsjekkes av maritim inspektør» (Uthevinger foretatt av rederiet.)
I henhold til dette punktet i driftshåndboken har rederiet utarbeidet utsjekklister fra navigatører, maskinsjef og matros – og motormann. Ikke utfylte utsjekklister ble sendt kommisjonen våren 2000. Frem til oktober 2000 har rederiet ikke lagt fram egne utsjekklister for restaurasjonspersonalet. I brev 18. oktober 2000 – svarbrev i anledning foreleggelse av kommisjonens faktumsgrunnlag av særlig relevans for rederiet – har rederiet opplyst at slike lister finnes og sendt kommisjonen udaterte, ikke utfylte blanketter for utsjekk av restaurasjonspersonalet.
Videre har rederiet i tråd med driftshåndboken utarbeidet et kvalifikasjonsbevis hvor det fremgår at vedkommende mannskap nå er kvalifisert til å gå selvstendige vakter på fartøyet. På beviset skal mannskapet bekrefte at vedkommende har fått den opplæringen som fremgår av driftshåndbokens pkt. 6.5.
Det finnes ingen formaliserte rutiner for operativ trening på nye skip og i nye farvann. Det følger imidlertid av stillingsbeskrivelsen til Snøggbåtdivisjonens maritime instruktør at han skal lære opp nye hurtigbåtnavigatører i fartøys- og farvannskunnskaper.
I følge driftshåndbokens pkt 9.8 skal det arrangeres ukentlige, månedlige og årlige øvelser om bord. I tillegg skal det hvert tredje år avholdes en katastrofeøvelse på et av rederiets fartøyer. I følge driftshåndbokens pkt. 6.4.3 er overstyrmannen fartøyets sikkerhetsoffiser og ansvarlig for at øvelser blir planlagt og gjennomført etter gjeldende regler.
Den ukentlige øvelsen, som gjennomføres hver lørdag ettermiddag, omfatter evakuering, kontroll av MOB-båten med utstyr samt en brannøvelse. Den månedlige øvelsen består av fem forskjellige elementer som skal rullere. I løpet av et år vil alle besetningene om bord ha vært gjennom alle elementene. Et element er øving i bruk av MOB-båten med to besetningsmedlemmer påført redningsdrakt. Andre elementer er gjennomføring av nødmanøver, nødstyringsøvelse og en realistisk «mann over bord»-øvelse med markør. På den årlige øvelsen skal ankerspillet prøves. Dessuten skal det gjennomføres en generell beredskapsøvelse der besetningen skal øve på å takle de mest nødvendige funksjoner dersom navigatør eller maskinsjef blir satt ut av spill. Hvert tredje år skal det dessuten gjennomføres en katastrofeøvelse med ett av rederiets fartøyer. De enkelte øvelser med beskrivelse er lagt inn i SAMA. SAMA-systemets øvelsesinformasjon er nærmere omtalt under pkt. 8.1.2. Systemet medfører at besetningen har oversikt over når en øvelse skal gjennomføres neste gang samt oversikt over når en øvelse sist ble gjennomført.
Det er ingen formaliserte rutiner i rederiet for opplæring i bruk av nytt teknisk utstyr som blir montert om bord. Rederiet baserer seg her på såkalt «kollegavisning».
I 1996 og 1998 har HSD avholdt retreningskurs over to dager for hurtigbåtnavigatørene. Det første kurset var rent teoretisk, med vekt på førstehjelp og holdninger mellom kaptein og overstyrmann. Det andre kurset hadde i tillegg et praktisk element – en brannøvelse på en hurtigbåt. Navigasjon av hurtigbåter har ikke vært noe eget tema på retreningskursene.
4.7.5 Opplæringen av besetningen på MS Sleipner
Kommisjonen har ovenfor redegjort for opplærings- og utsjekkingsrutinen som etter driftshåndboken skal følges før nye besetningsmedlemmer kan gå selvstendig tjeneste på skip. I følge HSDs brev til kommisjonen 18. oktober 2000 skal besetningen ha blitt utsjekket da MS Sleipner og MS Draupner ble satt i drift, men fordi driftshåndboken ikke var komplett, skal det ikke ha blitt utstedt kvalifikasjonsbevis.
Sverre Hagland kom første gang om bord i de nye fartøyene da MS Draupner lå ved kai på Hanøytangen, før HSD hadde overtatt dem. Her fikk han demonstrert hvordan flåtene skulle virke. Under denne demonstrasjonen ble imidlertid MOB-båten brukt som demonstrasjonsobjekt i stedet for flåtene. Visningen ble forestått av HSD-kapteiner som hadde vært ved verftet i Australia. Ingen av dem hadde imidlertid selv anvendt flåtearrangementet i praksis, jf. bl.a. pkt. 9.2.3. Noen opplæring i utsetting av flåtene ut over dette fikk han ikke. På et senere tidspunkt ble Hagland vist rundt, gjort kjent med sikkerhetsutstyr og fikk trening i å navigere fartøyet. I denne sammenheng viste kolleger av ham noen av funksjonene på radaren. Han fikk ingen opplæring i bruk av det elektroniske sjøkartet. I ettertid har Hagland forklart at han ikke kunne legge inn kurser og sonealarmer på dette kartet. Også på radaren var det flere sikkerhetsfunksjoner han ikke kunne benytte som følge av manglende opplæring. Opplæringen på de nye fartøyene varte etter Haglands egen vurdering i alt mellom tre og fem dager. Hagland hadde ikke lest MS Draupners driftshåndbok før han tok kommandoen på dette fartøyet. Senere ble håndboken justert, og han har forklart at det var vanskelig for ham å holde seg oppdatert. 13
Olav Skjetne var om bord på MS Sleipner på to turer før fartøyet ble satt i drift, men bare som passasjer. På disse turene fikk han anledning til å stille kapteinen noen spørsmål om navigasjonsinstrumentene, men ut over dette fikk han ingen opplæring i bruk av de nye instrumentene på MS Sleipner. Første gang han satt i overstyrmannsstolen og førte fartøyet, var det satt inn i rute.
Leiv Sørbø var om bord på MS Sleipner fire dager i juni 1999. Han ble da gjort kjent med skipets motorer, fikk satt seg inn dets manualer og fikk bistand fra de som hadde hatt byggetilsynet med fartøyet i Australia. På et senere tidspunkt har han vært på kurs angående hovedmotorene i Tyskland.
Restaurasjonsbesetningen var om bord på MS Sleipner da den lå ved Hanøytangen. Gjennom deltakelse i øvelser og omvisninger om bord, fikk også de noe kunnskap om fartøyets redningsmidler.
4.7.6 Konklusjoner – besetningen
Offiserene om bord på MS Sleipner hadde de nødvendige sertifikater for å gjøre tjeneste om bord, og de var således formelt kvalifisert til sitt arbeid. Hva angår dekksoffiserene, legger kommisjonen til grunn at opplæringen i bruken av nye navigasjonsinstrumenter om bord på MS Sleipner har vært utilfredsstillende. Det er gitt sporadisk opplæring i form av «kollegavisning», men det fantes ingen formaliserte opplæringsrutiner.
Som vist ovenfor, forutsetter regelverket at det skal gjennomføres ny utsjekk ved overgang til en ny skipstype. Rederiet hevder at slik utsjekk ble gjennomført. Kommisjonen vil påpeke at dette synes å harmonere dårlig med besetningens forklaringer. Som eksempel kan nevnes opplysningen fra kaptein Hagland om at han ikke hadde lest driftshåndboken da de nye fartøyene ble satt i rute. Hvis han ikke hadde lest driftshåndboken, kan han ikke ha vært sjekket ut. Det vises til hva maritim instruktør i HSD har forklart om dette, jf. pkt. 8.2.3.1.
Rederiet har ikke hatt noen rutiner for å sikre seg at mannskapet på MS Sleipner kunne betjene de navigasjonsinstrumentene de var satt til å betjene.
Etter kommisjonens oppfatning er rederiets opplæringsplan for hurtigbåtnavigatører for snever i forhold til de krav som stilles i hurtigbåtforskriften § 27, HSC-koden kap. 18.3 og Sjøfartsdirektoratets retningslinjer av 14. desember 1992. Driftshåndboken omhandler først og fremst opplysninger om driften av fartøyet. HSC-koden og ISM-retningslinjene stiller videre krav enn dette, jf. omtalen ovenfor i pkt. 3.4 og 3.5.
Hva angår restaurasjonsassistentene og barnepasseren, er det på det rene at samtlige av disse skulle ha gjennomført «Sikkerhetskurs for cateringspersonell» før de ble satt i tjeneste om bord. Kun én av de ansatte – Reidun Flatekval – hadde gjennomført slik opplæring, men da i relasjon til en annen fartøystype.
Kjellaug Skjerve hadde på eget initiativ gjennomført et kurs i grunnleggende sikkerhets- og beredskapsopplæring for offshorepersonell hos Nutec AS før, hun begynte i HSD. Dette kurset er imidlertid rettet mot offshorevirksomhet og vil ikke uten tilleggsopplæring tilfredsstille opplæringskravene som stilles i «Sikkerhetskurs for cateringspersonell».
Kommisjonen må i denne sammenheng påpeke at mønstringsmyndighetens kontroll av kvalifikasjonene til cateringbesetningen har sviktet på dette punkt. Kontrollen skulle ha brakt på det rene at cateringbesetningen ikke hadde fått sikkerhetsopplæringen som kvalifikasjonsforskriften krever.
Under det åpne møtet i Bergen i mars 2000 kom det frem at rederiet ikke var klar over at samtlige restaurasjonsassistenter skulle ha gjennomført et eget sikkerhetskurs. 14
Kommisjonen vil til sist spesielt påpeke at sikkerhetsbemanningen ikke hadde fått en grundig opplæring i bruken av evakueringssystemet om bord. Det er for så vidt betegnende at kaptein og overstyrmann aldri selv hadde forsøkt å utløse flåtesystemet og forhale flåtene. Evakueringssystemet var nytt og innviklet og burde ha gitt en særlig foranledning til grundig opplæring med demonstrasjon og trening i bruken av vinsjer og pumper mv. At evakueringssystemet var komplisert, ble fremhevet av Sjøfartsdirektoratet, og allerede i brev 3. desember 1998 påpekte direktoratet overfor rederiet at systemet forutsatte at mannskapet hadde egnet trening i bruken av det. Dette har rederiet etter kommisjonens oppfatning ikke tatt konsekvensene av. Offiserenes kjennskap til evakueringssystemet er omtalt nærmere i pkt. 9.2.4 nedenfor.
4.8 Byggetilsyn, sertifisering og godkjenning/akseptering av utstyr
I dette avsnittet vil kommisjonen gjøre rede for byggetilsynet fra norske myndigheter og Det Norske Veritas, utstedelsen av sertifikater og Sjøfartsdirektoratets godkjennelse/akseptering av enkelte av redningsmidlene. Kommisjonen har ovenfor i 4.4.2 og 4.3.2.3 påpekt mangler ved fartøyets evakueringssystem og feilplasseringen av overgangsnødkraftkilden. Av denne grunn blir godkjennelsesprosessen på disse feltene behandlet særskilt.
4.8.1 Byggeanmeldelse og inspeksjoner
HSD sendte inn byggemelding for nybyggene MS Sleipner og MS Draupner 15. april 1998. I brev fra Sjøfartsdirektoratet 3. juni 1998 ble byggemelding bekreftet mottatt, og rederiet fikk opplyst hvilke tegninger som måtte sendes inn for godkjennelse. I brev 26. august 1998 fra Austal Ships mottok direktoratet tegninger av generalarrangement, evakueringsplan og brannkontrollplan. Etter dette er det en fortløpende og omfattende skriftlig dialog mellom rederi, verft og Sjøfartsdirektoratet vedrørende tegninger, arrangement, stabilitet, manualer osv. Tegninger ble fortløpende godkjent av Sjøfartsdirektoratet. Ut over korrespondansen vedrørende evakueringssystemet, som er særskilt behandlet nedenfor, er det intet spesielt å bemerke til denne korrespondansen.
Sjøfartsdirektoratets besiktigelse av nybyggene fant sted dels under byggeprosessen i Australia, dels på Stord i forbindelse med overtakelsen av fartøyene.
En overingeniør fra Sjøfartsdirektoratet var på verftet en uke i desember 1998 for å informere og veilede verftet om norsk regelverk, saksgang og prosedyrer for sertifiseringsprosessen. Han foretok dessuten en inspeksjon av skrogene. En annen overingeniør var på verftet i hele mars 1999. Overingeniørens arbeidsfelter var særlig brannisolering og brannsikringssystemer, lastelinjeforhold og vann- og værtetthet. Vedkommende var til stede under evakueringstesten av MS Sleipner på verftet, og han var med på sjøtesten i farvannene utenfor verftet. Ut over dette var ikke tjenestemenn fra Sjøfartsdirektoratet på verftet.
På Stord ble det i perioden 27. juli – 11. august 1999 foretatt diverse sluttbesiktigelser, herunder besiktigelse av redningsutstyret, navigasjonsutstyret og innredningen. Prøvetur med MS Sleipner ble foretatt 11. august 1999.
Sjøfartsdirektoratet foresto selv i liten grad inspeksjoner av skrog og maskineri. I tråd med vanlig praksis, valgte man her i vesentlig grad å bygge på de inspeksjoner som representanter fra Det Norske Veritas foretok i byggeperioden. DNV foretok imidlertid inspeksjoner på basis av sine klasseregler, ikke i kraft av delegert offentlig myndighet fra Sjøfartsdirektoratet.
Det elektriske anlegget ble inspisert av en representant fra Produkt- og elektrisitetstilsynet. Representanten herfra var ved tre anledninger på besiktigelse på verftet i Australia. Enkelte mangler ble påpekt i besiktigelsesrapporter 5. april 1999 og 16. april 1999. Disse ble meldt rettet 29. april 1999 og 10. august 1999, og på denne bakgrunn utstedte tilsynet besiktigelseserklæring 11. august 1999.
4.8.2 Godkjennelse og inspeksjon av evakueringssystemet
Kommisjonen har funnet det riktig å gi en særskilt redegjørelse for Sjøfartsdirektoratets godkjennelsesprosess av MS Sleipners evakueringssystem. Dels skyldes dette at det er avdekket at systemet manglet typegodkjente hydrostatiske utløsere og derfor var regelstridig, se pkt. 4.4.2.1 ovenfor. Dels skyldes det at kommisjonen har påpekt konstruksjonssvakheter ved det valgte evakueringssystemet, se pkt. 4.4.2.5 ovenfor.
I perioden fra august 1998 og frem til juli 1999 var det en omfattende korrespondanse mellom verftet, rederiet og Sjøfartsdirektoratet knyttet til evakueringssystemet.
Basert på fartøyenes strukturelle brannsikring skulle MS Sleipner og MS Draupner kunne evakueres på 17 minutter og 40 sekunder. HSD og verftet la 28. oktober 1998 frem en evakueringsanalyse som viste at båtene med det foreslåtte evakueringssystemet kunne bli evakuert innen denne tidsperioden med en besetning på syv.
Ved oversendelsen av evakueringsanalysen fulgte også tegninger av flåtearrangementet og utløsningssystemet vedlagt. På disse tegningene var det ikke inntegnet hydrostatiske utløsere, bare fjernutløsere som skulle betjenes fra pumpestasjoner, se nærmere om dette ovenfor i pkt. 4.4.2.1. De manuelle utløserne var imidlertid feilaktig benevnt som hydrostatiske utløsere i teksten på tegningen.
Som følge av manglende typegodkjente hydrostatiske utløsere, var ikke flåtearrangementet tegnet med en tilfredsstillende friflyt-ordning. De manuelle utløserne har en hydrostatisk tilleggsfunksjon som løser ut når de kommer tilstrekkelig dypt i vann, men dette forutsetter blant annet at et tynt rør som går ut fra de manuelle utløserne ikke er skadet. Blir dette skadet, oppstår samme trykk på begge sider av membranen inne i den aktuelle utløseren, og den settes da ut av stand til å løse ut. Det er blant annet av denne grunn at manuelle utløsere ikke er typegodkjent som hydrostatiske utløsere.
Sjøfartsdirektoratet la evakueringsanalysen til grunn med noen mindre justeringer. Direktoratet fremmet flere innsigelser på flere stadier av godkjennelsesprosessen, mot blant annet vinsjearrangementet som skulle forhale redningsflåtene og mot måten containerne med redningsflåtene var anordnet. Manglende hydrostatiske utløsere ble imidlertid ikke kommentert, og systemet ble således godkjent uten at slike var inntegnet.
Kommisjonen har bedt Sjøfartsdirektoratet komme med en redegjørelse for hvordan evakueringssystemet kunne bli godkjent uten separate utløserenheter. Sjøfartsdirektoratet har forklart at det la til grunn at de inntegnede manuelle utløserenhetene – som feilaktig var benevnt «hydrostatic release» på tegningene – var godkjente hydrostatiske utløsere. 15 Først etter ulykken er Sjøfartsdirektoratet blitt klar over at de manuelle utløserenhetene ikke er typegodkjent som hydrostatisk utløser.
Etter en nokså omfattende korrespondanse var verftet i stand til å finne løsninger som tilfredsstilte direktoratet. Som eksempel kan nevnes at selve vinsjene etter direktoratets mening var plassert for lavt i forhold til der vannlinjen ville gå ved skadet fartøy. Dette ble løst ved å plassere vinsjene på pidestaller over dekket. Slike endringer medførte imidlertid at systemet gradvis ble mer komplisert.
Sjøfartsdirektoratets korrespondanse med rederiet og verftet er, etter Kommisjonens oppfatning, preget av skepsis til systemet, uten at direktoratet har avgjørende innvendinger mot konstruksjonen. Klarest kommer skepsisen til uttrykk i en telefaks til rederi og verft 16. juli 1999, hvor direktoratet påpekte at økt kompleksitet øker muligheten for feiloperasjon fra mannskapets side. I samme telefaks fremgikk det at direktoratet var nølende til å godkjenne systemet, fordi flåtene ville ligge langs en evakueringsstasjon med flere skarpe kanter og vinsjer som kunne punktere flåtene. Direktoratet ville likevel ikke nekte å godkjenne systemet utelukkende av disse grunner, dersom man gjennomførte en vellykket hardværstest.
Etter mottak av denne telefaksen skrev rederiet i telefaks 21. juli 1999 at det «urgently» trengte å få klarlagt om denne reservasjonen fra Sjøfartsdirektoratets side medførte at man ikke ville utstede noen sertifikater før en vellykket hardværstest var gjennomført.
I telefaks 22. juli 1999 ga Sjøfartsdirektoratet uttrykk for at manglende hardværstest ikke i seg selv ville medføre at det ikke ville utstede sertifikater, fordi det kunne være vanskelig å finne egnede forhold for en hardværstest på denne tiden av året. Hardværstesten måtte imidlertid gjennomføres innen fire måneder etter at båtene var satt i tjeneste. Samtidig ble det påpekt at manglende hardværstest ville medføre at direktoratet kun ville utstede en begrenset operasjonstillatelse.
Den 30. juli 1999 mottok Skipskontrollen i Bergen rapport om evakueringstesten fra Austal Ships. Fartøyet lot seg evakuere godt innenfor den fastsatte evakueringstiden, se pkt. 4.4.2.3 ovenfor. Den tilstedeværende inspektøren fra Sjøfartsdirektoratet hadde ikke kommentarer til måten testen var gjennomført på. Det var ikke påpekt at operatøren ikke hadde på seg redningsdrakt, slik Sjøfartsdirektoratets retningslinjer for evakueringsdemonstrasjoner krever.
Da fartøyene ble satt i rute 25. august 1999, forelå ingen endelig godkjennelse av evakueringssystemet ettersom det fortsatt ikke var gjennomført hardværstest. Men blant annet på bakgrunn av den vellykkede evakueringstesten, valgte Sjøfartsdirektoratet likevel å utstede en midlertidig operasjonstillatelse med operasjonsbegrensning på én meter signifikant bølgehøyde.
Etter det som er blitt opplyst, tok rederiet sikte på å gjennomføre hardværstest i begynnelsen av desember 1999. Den 15. november 1999 skrev rederiet til Sjøfartsdirektoratet og ba om å få slippe å blåse opp redningsflåten under hardværstesten. Rederiet fryktet at man kunne miste flåten under forsøket på å taue den tilbake til vinsjestasjonen. En ny flåte ville koste ca. 250 000 kroner. Søknaden ble uten videre avslått av direktoratet tre dager senere.
Hva angår manglende typegodkjente hydrostatiske utløsere, ble denne feilen aldri avdekket. Besiktigelsen av evakueringssystemet fant sted på Stord 27. juli 1999. Besiktigelsesmannen konstaterte da at monteringen var i samsvar med de godkjente tegningene. Som nevnt ovenfor, hadde direktoratet tidligere godkjent tegningene uten egne hydrostatiske utløsere. Besiktigelsesmannen var ikke klar over at de monterte manuelle utløserne ikke var typegodkjent som hydrostatiske utløsere.
4.8.3 Godkjennelse og inspeksjon av overgangsnødkraftkilden
Kommisjonen har ovenfor i pkt. 4.3.2.3 påpekt at overgangsnødkraftkilden på MS Sleipner ikke var plassert i samsvar med HSC-kodens krav. I dette avsnittet skal kommisjonen ta for seg godkjennelsesprosessen knyttet til denne plasseringen.
I brev av 30. september 1998 sendte HSD en rekke tegninger til Sjøfartsdirektoratet for kommentarer og godkjennelse. Blant disse tegningene var «083–702E-0002 DC Distribution Line Diagram» (tegning 1) og «083–702F-001 Cable routes layout» (tegning 2). Kopier av den mottatte dokumentasjonen ble av direktoratet oversendt Produkt- og elektrisitetstilsynet.
Begge disse tegningene ble oversendt Sjøfartsdirektoratet på nytt i brev fra HSD 7. juni 1999 – denne gang som «electrical as built drawings», dvs. tegninger som viste hvordan skipet faktisk var bygget.
På den førstnevnte tegningen er «emergency battery» med tilhørende batterilader/likeretter plassert i tilknytning til broen. På den andre tegningen er «Main Rectifier & Battery Back Up» plassert nede i styrbord pongtong – noe til babord for midtlinjen. Plasseringen av overgangsnødkraftkilden var for øvrig ikke kommentert verken i tegningene eller i brevet.
Sjøfartsdirektoratet oppfattet de nevnte enhetene på tegning 1 som overgangsnødkraftkilden, og fant at plasseringen som var skissert der var forskriftsmessig. Direktoratet fant ikke grunn til å anta at «Main Rectifier & Battery Back Up» på tegning 2 var fartøyets overgangsnødkraftkilde. De innsendte elektriske tegningene ble godkjent med noen mindre kommentarer i brev til HSD 24. november 1998. Heller ikke Produkt- og elektrisitetstilsynet hadde noen kommentarer til plasseringen av overgangsnødkraftkilden – plasseringen som fremkom av tegning 1 ble ansett forskriftsmessig.
Det elektriske anlegget ble inspisert av Produkt- og elektrisitetstilsynet i tråd med hurtigbåtforskriften § 13 om besiktigelse av elektriske anlegg – besiktigelsesmann derfra var tre ganger på verftet i Australia. At overgangsnødkraftkilden faktisk ble plassert nede i babord pongtong – i strid med tegning 083–702E-0002 Sheet 01 DC Distribution Line Diagram – ble oversett av besiktigelsesmannen. 16 Det ble således ikke foretatt noen vurdering av om denne plasseringen var forskriftsmessig.
4.8.4 Utstedelsen av offentlige sertifikater
Operasjonstillatelsen for hurtiggående fartøy ble utstedt av Sjøfartsdirektoratet 18. august 1999, med gyldighet frem til 18. januar 2000. På dette tidspunkt var det fortsatt enkelte sentrale forhold som ikke var brakt i orden. Kommisjonen må her særskilt fremheve manglende hardværstest.
I operasjonstillatelsen ble det inntatt en operasjonsbegrensning på én meter signifikant bølgehøyde. Det fremgår ikke av oversendelsesbrevet hvorfor denne er fastsatt til én meter. Hvis den sammenholdes med telefaks til rederiet fra Sjøfartsdirektoratet 22. juli 1999 om hardværstest, er det klart at operasjonsbegrensningen må sees i sammenheng med at hardværstesten ikke var gjennomført. I følge det Sjøfartsdirektoratet har forklart i ettertid, ønsket direktoratet å fremtvinge gjennomføring av hardværstesting av evakueringssystemet ved å sette fartsbegrensingen såpass lavt, se pkt. 4.8.7.
Sikkerhetssertifikat for hurtiggående fartøy med vedlagt utstyrsfortegnelse ble utstedt av Sjøfartsdirektoratet samme dag som operasjonstillatelsen og med samme gyldighetstid som denne.
Midlertidig sikkerhetsstyringssertifikat for MS Sleipner ble utstedt av Skipskontrollen i Bergen 20. august 1999, basert på tidligere sertifisering av rederiet HSD samt på midlertidige ISM-manualer på fartøyet. Gyldighetstiden var frem til 21. februar 2000.
Bemanningsoppgave for MS Sleipner ble utstedt av Sjøfartsdirektoratet 4. august 1999. Kommisjonen har redegjort nærmere for denne i pkt. 4.7.2.
Radioinspeksjonen utstedte sikkerhetssertifikat for radiotelefon på skip i innenriks fart 6. oktober 1999. Den 10. august 1999 ga Produkt- og elektrisitetstilsynet driftstillatelse for det elektriske anlegget om bord.
4.8.5 DNVs sertifisering
Det fulgte av HSDs tekniske spesifikasjon forut for kontraktsinngåelsen med Austal at de to nybyggene skulle bygges i henhold til Det Norske Veritas’ regler og også klassifiseres av DNV.
I tråd med vanlige prosedyrer sendte verftet inn tegninger til DNV, som fortløpende godkjente disse, eventuelt etter anmerkninger og påfølgende endringer fra verftets side. DNVs stedlige representanter i Fremantle foresto byggetilsynet. I byggeperioden var det tilnærmet daglige inspeksjoner av byggene fra DNVs side. Besiktigelsesmennene besiktiget skipene i henhold til omfattende sjekklister.
DNVs inspeksjoner avdekket ikke plasseringen av overgangsnødkraftkilden. Besiktigelsesmannen har sett batteribanken i babord pongtong, men gjenkjente ikke dette som overgangsnødkraftkilden.
Undersøkelseskommisjonen avdekket under sin besiktigelse av MS Draupner 9. og 10. desember 1999, at man kunne se inn til babord pongtong gjennom små hull i langsskipsstiverne – de vanntette stiverne var således ikke helt vanntette. DNVs besiktigelsesmann er blitt konfrontert med dette, men han kunne ikke selv huske å ha observert denne mangelen. Det har på grunn av skader på vraket ikke vært mulig å avklare om MS Sleipner hadde tilsvarende mangler.
Det Norske Veritas utstedte klassesertifikat 27. juli 1999. Klassesertifikatet med vedlegg er nærmere omtalt i pkt. 4.1.3 ovenfor.
4.8.6 Typegodkjenning/akseptering av redningsvestene
4.8.6.1 Opprinnelig typegodkjenning og akseptering
Kommisjonen har i pkt. 3.3.6.1 ovenfor redegjort for reglene for godkjenning og aksept av redningsutstyr. I pkt. 3.3.6.2 flg. ovenfor er det redegjort for IMO-kravene til redningsutstyr, herunder krav som stilles til testene.
Ved ulykken viste det seg at redningsvestene ikke holdt mål, se omtalen nedenfor i pkt. 6.6.1. Kommisjonen finner det derfor riktig å gjøre nærmere rede for godkjennelses- og akseptprosessen av disse.
Redningsvestene – Artica A og B fra den italienske produsenten Canepa & Campi – ble 7. mai 1997 funnet å være i samsvar med SOLAS-kravene av Registro Italiano Navale (RINA) i Genova. RINA er et italiensk klasseselskap, for øvrig ikke et av klasseselskapene som Sjøfartsdirektoratet har anerkjent. Vestene hadde forut for dette blitt testet etter MSC.54(66) om testing av livredningsutstyr, og RINA la til grunn i en etterfølgende rapport at vestene tilfredsstilte testkravene.
På bakgrunn av testrapporten ble Artica A og B typegodkjent av det italienske transportministeriet 12. juli 1997. Den 1. oktober 1997 ble de på samme bakgrunn typegodkjent for en periode på fem år av Bureau Veritas – The British Commitee, som etter fullmakt fra det britiske Marine Safety Agency (MSA) gir slike typegodkjennelser.
Etter den britiske typegodkjennelsen sendte Canepa & Campi brev til Sjøfartsdirektoratet 4. desember 1997, der man søkte om aksept av redningsvestene i Norge. Vestene ble akseptert av direktoratet i brev til Canepa & Campi 5. mars 1998. Det ble i brevet fremhevet at aksepten bare sto ved lag så lenge typegodkjennelsen fra MSA sto ved lag.
En akseptering innebærer som nevnt ingen selvstendig vurdering av om utstyret tilfredsstiller det internasjonale regelverket. Denne vurderingen forutsettes gjort av det organet som har typegodkjent produktet. Sjøfartsdirektoratet foretok derfor ikke noen selvstendig vurdering av om vestene tilfredsstilte regelkravene.
4.8.6.2 Tilbaketrekning av typegodkjennelse og aksept – testing
Etter ulykken ble det fra flere hold stilt spørsmål om redningsvestene tilfredsstilte gjeldende regelkrav. På denne bakgrunn gjennomførte SINTEF Unimed 15. desember 1999 på oppdrag av Bergens Tidende en test av Artica A i henhold til enkelte av IMOs testkriterier. Testen viste at vesten ikke tilfredsstilte kravene til påkledning uten forutgående veiledning, oppdrift, snuegenskaper og evne til å tåle hopp fra 4,5 meters høyde.
Testresultatene ble offentliggjort av Bergens Tidende 17. desember 1999. Samme dag trakk Sjøfartsdirektoratet sin aksept av Artica A og B tilbake under henvisning til SINTEFs konklusjoner.
I midten av januar 2000 ble redningsvestene testet av Robert Gordon Technology Institute i Aberdeen på oppdrag fra britiske sjøfartsmyndigheter. Testene avdekket de samme mangler som SINTEF-testen. Den 27. januar 2000 ble den britiske typegodkjennelsen trukket tilbake.
På oppdrag fra Sjøfartsdirektoratet gjennomførte SINTEF Unimed en mer omfattende test av redningsvestene 31. januar 2000. Også denne testrapporten konkluderer med at det forelå alvorlige mangler. Enkelte testresultater skal kommenteres nærmere, fordi de også er egnet til å avdekke mangler ved testkravene.
En av testene skal avdekke om redningsvestens festestropper har tilstrekkelig styrke. En våt vest som brukes av en person der båndene er festet på korrekt måte, skal i følge IMOs testkrav blant annet tåle en belastning fra skulderseksjonen på 900 N i en halv time uten at vesten bli skadet. I følge RINAS testrapport viste Artica A ingen tegn til skade etter en slik belastning.
Når vesten er korrekt festet, er festestroppene av nylon ført i kryss over brukerens rygg og festet med knute oppå flyteelementene på brukerens mage. Dersom denne knuten er tilstrekkelig sterk, er det ingen grunn til å tvile på at vestene tåler den belastning som testkravet stiller. SINTEF avdekket imidlertid under bassengtestene av Artica A at stroppene har en tendens til å gli ned fra flyteelementene på brukerens mage. Dersom dette skjer, er det bare en enkelt søm som fester stroppene til vesten som holder brukeren fast. Da vesten ble testet der festestroppen hadde glidd ned fra flyteelementene, røk festet ved en belastning på 370 Newton, altså langt under testkravet.
RINA testet med andre ord den styrken vesten har, dersom den bæres ideelt. SINTEF testet på den annen side den styrken vesten reelt vil ha, dersom den bæres på den måten som lett kan være tilfellet i en nødsituasjon. Det er utvilsomt uheldig at testkravet ikke tar høyde for at vesten lett kan bæres på feil måte, ikke minst fordi oppdriften i vannet lett kan presse den ut av posisjon.
Testen som skulle vurdere vesten i vannet, avdekket store mangler ved vesten i forhold til testkravene. Ingen av de seks testpersonene ble snudd rundt i løpet av fem sekunder da de simulerte bevisstløs stilling med hodet ned. Ingen fikk munnen 120 mm over vannflaten i hvilestilling.
I RINAS’ test ble samtlige seks testpersoner snudd rundt i løpet av fem sekunder. I hvilestilling hadde testpersonene hodet mellom 125 og 158 mm over vannflaten.
RINA testet vesten på nytt 28. februar 2000. I denne testen ble de seks testpersonene snudd i løpet av 3,8 sekunder eller mindre, og i hvilestilling hadde testpersonene munnen mellom 130 og 153 mm over vannet.
Det er et testkrav at testgruppen på seks personer skal klare å ta på seg vesten i løpet av ett minutt uten assistanse, etter en forutgående demonstrasjon. I følge LSA-koden skal dessuten 75 % av alle personer som er helt uten forkunnskaper om vesten, kunne ta den på seg uten assistanse i løpet av 1 minutt, men dette kravet er det ikke utarbeidet testkriterier for.
Uten forutgående demonstrasjon maktet bare en av åtte i SINTEFs testgruppe å feste vesten slik det er forutsatt av produsenten. To av dem maktet ikke å feste festestroppene. De øvrige seks hadde tatt på seg vesten på seks forskjellige måter, hvorav bare én gjorde det på produsentens forutsatte måte. Etter en demonstrasjon fikk likevel samtlige festet vesten på korrekt måte i løpet av 42 sekunder.
RINA foretok en påkledningstest 28. februar 2000. Uten forutgående demonstrasjon maktet samtlige seks testpersoner å få vesten på seg i løpet av 29,4 sekunder. To av dem hadde festestroppene for løst festet rundt kroppen. Etter demonstrasjon klarte testpersonene å få vesten på seg i løpet av 29,6 sekunder – demonstrasjonen hadde med andre ord lite å si for tempoet.
Italienske sjøfartsmyndigheter har i etterkant av RINAs nye test sendt brev til EU og sjøfartsmyndighetene i EØS, der man under henvisning til denne testen har påpekt at Artica-vestene er i samsvar med LSA-koden. 17
At forskjellige testinstitusjoner kan komme til så forskjellige testresultater når det samme regelverket anvendes, indikerer at testkriteriene ikke er objektive nok. Det er blant annet grunn til å vurdere om innstilling og/eller aktivitet fra testpersonene i vannet kan gjøre store utslag på testresultatene. Betegnende her er en opplysning i det nevnte brevet fra italienske sjøfartsmyndigheter. Det påpekes her, i tilknytning til den nevnte testen hos Robert Gordon Technology Institute, at etter den tilstedeværende representanten fra RINAs oppfatning «lå testpersonene ikke tilstrekkelig avslappet i vannet».
Kommisjonen vil i pkt. 12.4.3 fremme forslag om mer objektiviserte testkriterier.
4.8.7 Konklusjoner – byggetilsyn, sertifisering og godkjenning/ akseptering av utstyr
MS Sleipner oppfylte på flere punkter ikke krav som etter HSC-koden og ISM-koden må være oppfylt for at sertifikater skal kunne utstedes.
Hva angår operasjonstillatelsen, vil kommisjonen påpeke at ingen av navigatørene som skulle operere MS Sleipner var utsjekket på fartøyet i samsvar med HSC-koden kap. 18.3.3, jf. også Sjøfartsdirektoratets retningslinjer av 16. mars 1993, som er behandlet ovenfor i pkt 3.6.3.4. I følge HSC-koden kap 18.1.3 nr. 7, jf. også kap. 1.2.3, skal operasjonstillatelse ikke utstedes før administrasjonen er overbevist om at besetningen har tilstrekkelig kompetanse til å føre den spesielle fartøystypen.
I følge HSC-koden kap. 18.2 skal administrasjonen påse at rutehåndbok, operasjonshåndbok og opplæringshåndbok foreligger, og at disse er i samsvar med kodens krav. Da operasjonstillatelsen ble utstedt, var dette bare delvis tilfellet, se pkt. 4.6.2 ovenfor.
Den manglende hardværstesten av evakueringsarrangementet var fra Sjøfartsdirektoratets side ment å være oppveid ved at direktoratet inntok en operasjonsbegrensning på én meter signifikant bølgehøyde i operasjonstillatelsen. MS Sleipner og MS Draupner var imidlertid ment å trafikkere et farvann hvor én meter signifikant bølgehøyde flere steder vil være regelen og ikke unntaket. Det vises til punkt 5.5.4.4. nedenfor. En slik driftsbegrensning vil derfor være uforenelig med jevnlig bruk av fartøyene som tiltenkt.
Sjøfartsdirektoratet opplyste under det åpne møtet i Bergen at man valgte denne kunstig lave begrensingen for å gi rederiet et incitament til å foreta en hardværstest så fort som mulig. 18 Sjøfartsdirektoratet forutsetter da at rederiet opererer innen operasjonsbegrensningen, men direktoratet har ikke rutiner for å følge opp om dette skjer.
Etter kommisjonens oppfatning er det lite tjenlig å gi en kunstig lav operasjonsbegrensning når man ikke har mulighet til fortløpende å kontrollere at den etterleves. Sjøfartsdirektoratet burde i stedet ha valgt ikke å utstede operasjonstillatelse før hardværstest var gjennomført. Rederiet har med tilslutning fra Sjøfartsdirektoratet anført at det ikke var mulig å finne egnede forhold for gjennomføring av hardværstest i perioden før overtakelse av MS Sleipner og MS Draupner sommeren 1999. Kommisjonen finner det overraskende at man i løpet av juli og august 1999 ikke var i stand til å finne egnede testforhold innen rimelig nærhet i tid. Til sammenligning fant man egnede forhold for hardværstesting av MS Draupner 15. juli 2000, det vi si midt på sommeren. Da kommisjonen ønsket å få utført manøvertest på MS Draupner, lå forholdene ved Marsteinen nærmest kontinuerlig til rette for dette.
For øvrig er det kommisjonens oppfatning at Sjøfartsdirektoratet utfra en vurdering av totalarrangementet ikke skulle ha godkjent evakueringssystemet på MS Sleipner. Kommisjonen viser her til vurderingene i pkt. 4.4.5 ovenfor samt de innvendinger Sjøfartsdirektoratet hadde under godkjennelsesprosedyren, se pkt. 9.4.2.7.
MS Sleipners overgangsnødkraftkilde – batteribank og likeretter – samt likeretter for tavle 1L som leverte strøm til sentrale nødforbrukere, var plassert i rommet forut for maskinrommet i babord pongtong, like under fartøyets vannlinje ved såkalt «regelskade». På innsendt tegninger var den plassert i tilknytning til broen. Det kan se ut som om Sjøfartsdirektoratet og Produkt- og elektrisitetstilsynet ikke har hatt rutiner for å forvisse seg om at innretninger av denne typen faktisk er plassert der de skal være i følge de godkjente tegninger.
At evakueringssystemet på MS Sleipner manglet hydrostatiske utløsere, skyldes i første rekke at Selantic utarbeidet tegninger uten slike inntegnet. Sjøfartsdirektoratet burde imidlertid ha hatt rutiner for å avdekke en slik mangel, både ved godkjennelse av tegninger og ved senere inspeksjon av fartøyet. Sjøfartsdirektoratet har opplyst at man etter ulykken har avdekket mangler ved friflyt-arrangementet på flere andre fartøyer, se pkt. 9.4.2.3 nedenfor. Manglene har til dels vært av samme karakter som på MS Sleipner.
Hva angår typegodkjenning og aksept av redningsvester og annet livredningsutstyr, er det etter kommisjonens oppfatning foruroligende at funksjonstestene kan slå så forskjellig ut. Artica A og B er blitt typegodkjent og deretter akseptert i flere europeiske land på bakgrunn av tester som i ettertid viser seg ikke å holde mål. Dagens system med aksept av utstyr på bakgrunn av andre lands typegodkjennelser, kan representere en alvorlig sikkerhetsrisiko dersom man ikke kan basere seg på at testene er gjennomført på en reproduserbar og etterprøvbar måte. Kommisjonen finner grunn til å fremheve at det ikke kan rettes kritikk mot Sjøfartsdirektoratet på dette punkt – direktoratet må forholde seg til de spillereglene som følger av EØS-avtalen.
Fotnoter
«Structural Assessment of MS Sleipner», MARINTEK Report 28. august 2000, se særskilt vedlegg del 10.
Se referanse i forrige fotnote.
«Structural Assessment of MS Sleipner», MARINTEK Report 28. August 2000, se særskilt vedlegg del 10.
Se brev til Undersøkelseskommisjonen fra Ship & Offshore Surveyors AS 26. mai 2000 og telefaks fra Ship & Offshore Surveyors AS til kommisjonen 24. august 2000.
Udatert «respons» fra Austal Ships Pty. Ltd. til kommisjonen samt opplysninger i møte med verfet 10. august 2000.
Kommentarer til «Respone» fra Austal Ships. Notat fra HSD til kommisjonen 22. august 2000.
MARINTEK Rapport «Manøveregenskaper MS Draupner» 10. januar 2000, se særskilt vedlegg del 1.
(366 x 110) / (100 x 4) = 101 personer pr. flåte.
366/3 = 122 personer pr. flåte.
Det Norske Veritas’ rapport «Examination of life-rafts and life-raft release systems of M/S SLEIPNER», se særskilt vedlegg del 11, side 1 er det forklart nærmere hvordan de manuelle og hydrostatiske utløserenhetene fungerer.
Møtebok 3 side 8.
Forklaring fra overstyrmannen, Møtebok 1 side 7.
Møtebok 1 side 117.
Møtebok 2 side 13.
Brev fra Sjøfartsdirektoratet til undersøkelseskommisjonen 7 september 2000.
Se brev til Undersøkelseskommisjonen fra Produkt- og elektrisitetstilsynet 19. mai 2000.
Letter from Ministerio dei Trasporti e della Navigazione to European Commission and MOU Member states July 22, 2000.
Møtebok 2 side 43.